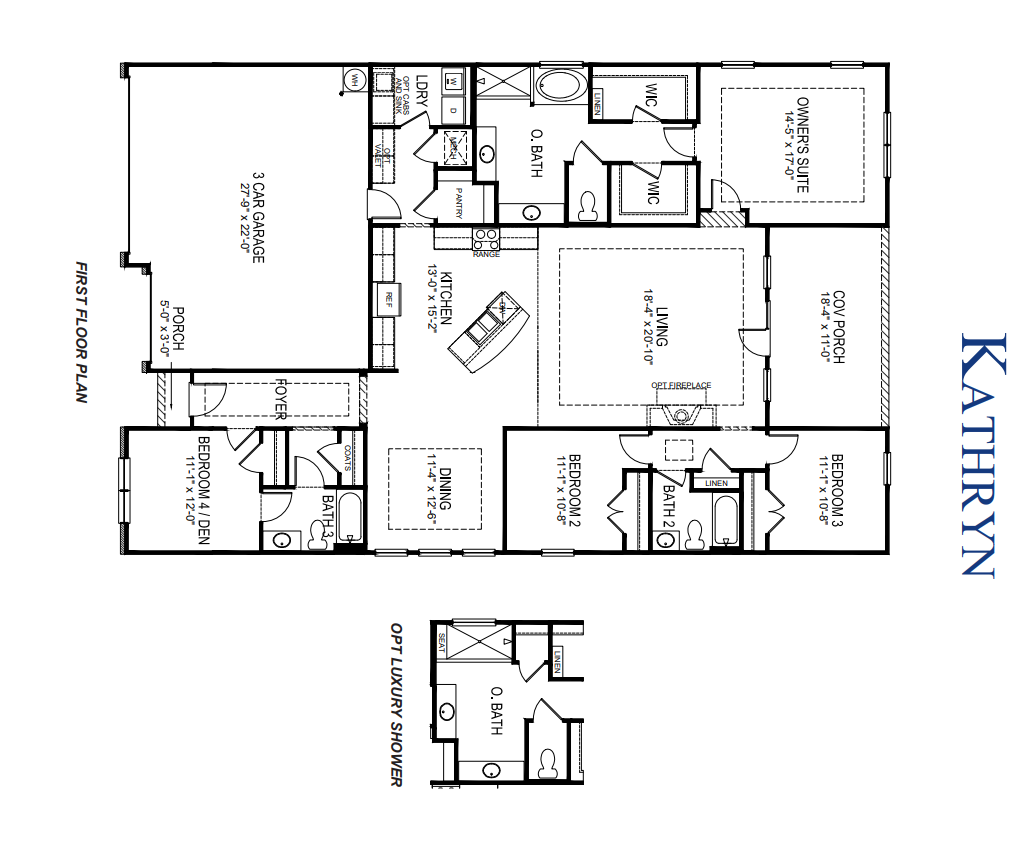
Kathryn Floor Plan
Call for Information
| Tradition SeriesSM
4 Bed |
3 Bath |
3 Garage |
1 Story
2,291 Sq. Ft.
About this floor plan
The Kathryn is one of our one-story homes featured in Campbell Ridge in Anderson, South Carolina. This thoughtfully designed home offers four bedrooms, three bathrooms, and a three-car garage, blending spacious living with everyday functionality. The Kathryn features an open-concept layout that creates a welcoming flow throughout the home. As you enter, you’ll be greeted by high ceilings and a bedroom near the foyer that can easily be used as a home office or den, complete with its own full bathroom. The kitchen features a large center island and overlooks the dining area and living room, making it ideal for entertaining and everyday living. A fireplace adds a warm focal point to the living space, while large windows allow natural light to fill the room.
The primary suite is located on the opposite side of the home, offering a private retreat with ample space. The en-suite bathroom includes dual sinks, a soaking tub, a walk-in shower, and dual closets, with a private water closet for added convenience. Two additional bedrooms share a full bathroom, providing comfort and privacy for guests or household members. With its open layout, thoughtful design, and inviting living spaces, the Kathryn is the perfect place to call home in Campbell Ridge.
Read more about this plan
{"InvalidUserInputMessage":"Please check your data entered again","ServerErrorMessage":"We couldn't share this page via email, try again later","SuccessResultCode":0,"InvalidUserInputResultCode":1,"ServerErrorResultCode":2,"HostName":"http://www.drhorton.com","DefaultPageUrl":"https://www.drhorton.com/south-carolina/greenville/pelzer/campbell-ridge/floor-plans/2290","DefaultModalHeader":"Share this property."}
Facebook LinkedIn Email