Plumtree Floor Plan
starting at $285,300
| Tradition SeriesSM
3 Bed |
2.5 Bath |
2 Garage |
2 Story
1,650 Sq. Ft.
Tour Brook Valley's home of the week.
Book a tour
About this floor plan
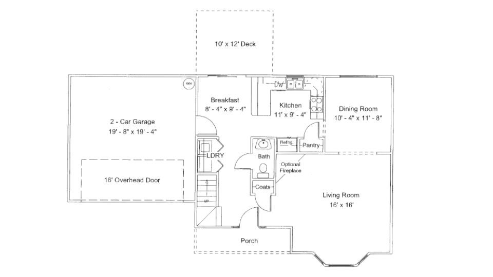
The Plumtree is one of our two-story homes featured in our Brook Valley community in Piedmont, South Carolina. This thoughtfully designed home offers three bedrooms, two and a half bathrooms, a bonus room, and a two-car garage. The Plumtree provides a functional layout that balances comfortable living spaces with flexible options for future use. The main level features an open-concept design that connects the kitchen, dining room, and living room, creating a welcoming space for everyday living and entertaining. The living room offers plenty of space to relax and gather, while the kitchen includes a pantry and convenient access to both the dining area and breakfast nook. A half bathroom and laundry area are also located on the main level for added convenience.
Upstairs, the primary suite offers a private retreat with a walk-in closet and an en-suite bathroom. Two additional bedrooms share a full bathroom, providing comfortable accommodations for guests or additional living needs. A bonus room offers flexibility for storage or future expansion to fit your lifestyle. With its practical layout, flexible spaces, and inviting living areas, the Plumtree is a wonderful place to call home in Brook Valley.
Read more about this plan
{"InvalidUserInputMessage":"Please check your data entered again","ServerErrorMessage":"We couldn't share this page via email, try again later","SuccessResultCode":0,"InvalidUserInputResultCode":1,"ServerErrorResultCode":2,"HostName":"http://www.drhorton.com","DefaultPageUrl":"https://www.drhorton.com/south-carolina/greenville/piedmont/brook-valley/floor-plans/1650","DefaultModalHeader":"Share this property."}
Facebook LinkedIn Email