Southport Floor Plan
Call for Information
| Tradition SeriesSM
4 Bed |
3 Bath |
2 Garage |
2 Story
2,814 Sq. Ft.
About this floor plan
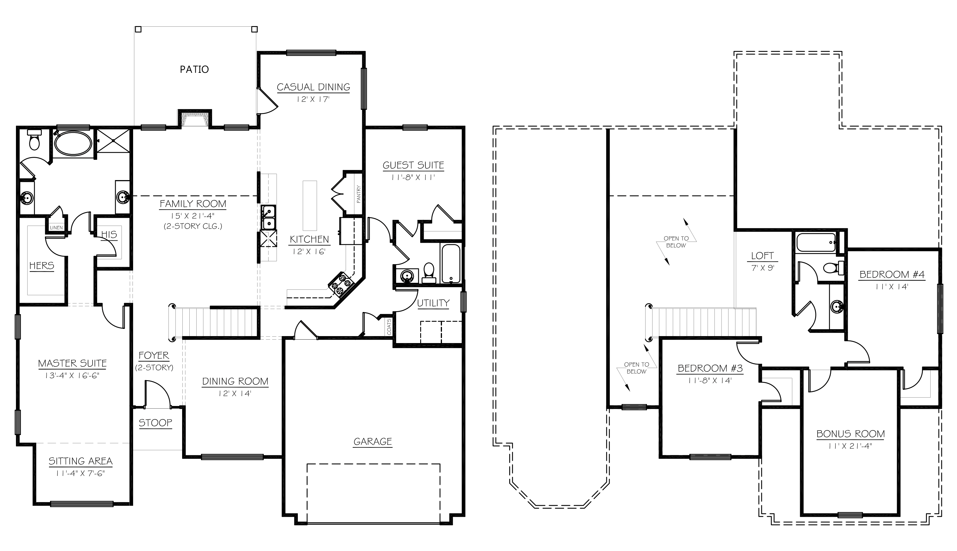
The Southport is one of our thoughtfully designed two-story floorplans featured at Reedy Lake in Piedmont, South Carolina. This spacious 2,814-square-foot home features four bedrooms, three bathrooms, and a two-car garage. With its elegant two-story foyer and living room, the Southport creates an immediate sense of openness and sophistication from the moment you enter. The kitchen connects seamlessly to the living area while maintaining a sense of privacy, with added cabinetry and countertop space for functionality. A formal dining room and a casual dining area provide flexibility for both everyday meals and special gatherings. The kitchen includes a large island, stainless steel appliances, and a walk-in pantry for extra storage.
The first floor also includes a guest suite with an adjacent full bathroom, ideal for visitors or multi-generational living. The primary suite spans nearly an entire wing of the home, featuring a private sitting area, dual walk-in closets, and a spa-inspired bathroom with dual vanities, a separate garden tub and shower, and a private commode room. Upstairs, you’ll find a spacious loft and two additional bedrooms, along with a full bath featuring a separate shower and commode room. A dedicated laundry room with extra storage completes the home’s thoughtful design. With its grand ceilings, elegant layout, and refined details throughout, The Southport combines modern design with timeless charm, creating a home that’s both impressive and inviting.
Read more about this plan
{"InvalidUserInputMessage":"Please check your data entered again","ServerErrorMessage":"We couldn't share this page via email, try again later","SuccessResultCode":0,"InvalidUserInputResultCode":1,"ServerErrorResultCode":2,"HostName":"http://www.drhorton.com","DefaultPageUrl":"https://www.drhorton.com/south-carolina/greenville/piedmont/reedy-lake/floor-plans/2814","DefaultModalHeader":"Share this property."}
Facebook LinkedIn Email