Fleetwood Floor Plan
Call for Information
|Tradition SeriesSM
4 Bed |
3 Bath |
2 Garage |
2 Story
2,558 Sq. Ft.
About this floor plan
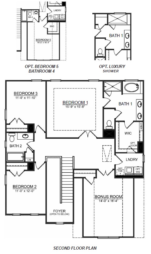
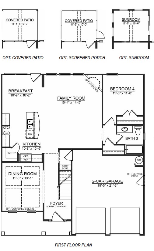
This spacious two-story home features four bedrooms, three bathrooms, and a two-car garage, featuring plenty of room.
Upon entering, you’ll be welcomed by a grand foyer that seamlessly integrates the living, dining, and kitchen areas, creating a spacious and inviting atmosphere. The chef’s kitchen is equipped with top-of-the-line appliances, large countertops, ample storage space, and a walk-in pantry, making it perfect for cooking and entertaining.
The primary suite serves as a peaceful retreat, complete with a luxurious bedroom, spa-like en-suite bathroom, and a walk-in closet. The additional bedrooms and bathrooms features comfort and privacy for family members and guests. A versatile bonus room can be transformed into a home office, media room, or playroom to suit your needs.
With its thoughtful design, spacious layout, and modern conveniences, this home is the perfect place to call your own.
Facebook LinkedIn Email