About this floor plan
Excited to talk new homes?
Text with us
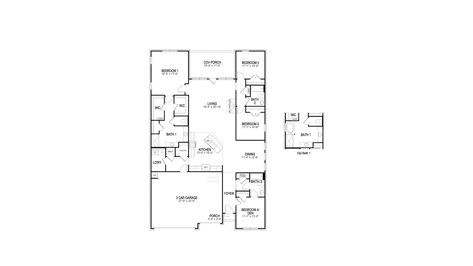
The Kathryn is an exquisitely designed residence, offering an expansive 2,300 square feet of luxurious living space. This remarkable home comprises four generous bedrooms, three sophisticated bathrooms, and a three-car garage, ensuring both comfort and convenience. Nestled at the rear of the house, the primary bedroom provides serene views of the backyard and features a spacious walk-in closet. The primary bathroom serves as a true sanctuary, complete with dual vanities and a walk-in shower, creating a spa-like ambiance. At the front of the home, you'll discover Bedroom 4, which can easily function as a den, offering flexible living arrangements. Next to this room is one of the secondary bathrooms, equipped with a shower/tub combination and stylish quartz countertops that marry aesthetics with practicality.
The kitchen, featuring stunning granite countertops and stainless-steel appliances, serves as the heart of the residence. With an open floor plan, the kitchen seamlessly connects to the dining area and a spacious living room—ideal for hosting gatherings. The living room extends to the semi-private back patio, providing an excellent space for both relaxation and entertaining. Natural light pours through the home, enhancing the warm and inviting ambiance of the kitchen, living, and dining spaces. Like all homes in Hedge Rose, The Kathryn is equipped with the Home is Connected smart home technology package, enabling you to manage your home effortlessly via your smart device, whether you are at home or away. With its perfect blend of contemporary elegance and practicality, The Kathryn elevates your lifestyle and fosters cherished memories. Please note that images may depict similar homes and are for representational purposes only.
Read more about this plan
Facebook LinkedIn Email