About this floor plan
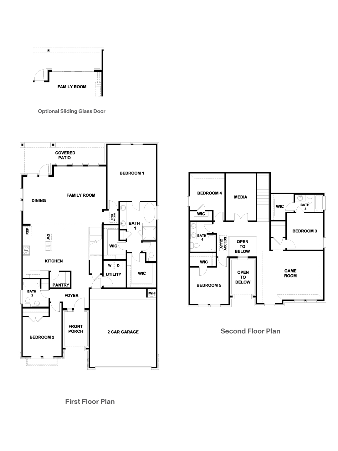
The Keller floorplan at The Enclave at Bar W Ranch in Leander, TX, is a grand and versatile two-story home designed for those who need maximum space and luxury. This expansive layout features 5 bedrooms, 4 full bathrooms, a 2-car garage, and a footprint that perfectly balances high-end gathering areas with private living quarters. The home begins with a welcoming foyer that passes a secluded secondary bedroom and a full guest bathroom at the front, offering an ideal setup for visitors or a home office.
The heart of the home is a high-end gourmet kitchen that flows effortlessly into the dining area and a massive family room. This chef-inspired space is defined by premium quartz countertops, a decorative tile backsplash, and a grand center island. For those who value the outdoors, the family room opens to a large covered patio, with the option to upgrade to a 8-foot sliding glass door for a modern, seamless indoor-outdoor transition. Tucked away on the first floor for ultimate privacy, the primary suite (Bedroom 1) serves as a luxury retreat, featuring a spa-like bathroom with dual vanities, a private water closet, and two separate, oversized walk-in closets. The second floor is a dedicated entertainment hub, featuring both a spacious game room and a separate media room, providing multiple areas for family fun and relaxation. Three additional secondary bedrooms are located upstairs, two of which share a bathroom while one enjoys private access to a fourth full bath. With America’s Smart Home® package, residents enjoy seamless control via the Qolsys IQ Panel, Video Doorbell, and the Alarm.com app, alongside a Honeywell Thermostat, and Kwikset Smart locks. Your exterior is equally refined, featuring a professionally designed landscape package and a full irrigation system for effortless curb appeal.
Read more about this plan
Facebook LinkedIn Email