The Yellowstone II Floor Plan
Call for Information
| Tradition SeriesSM
4 Bed |
2 Bath |
2 Garage |
1 Story
1,670 Sq. Ft.
About this floor plan
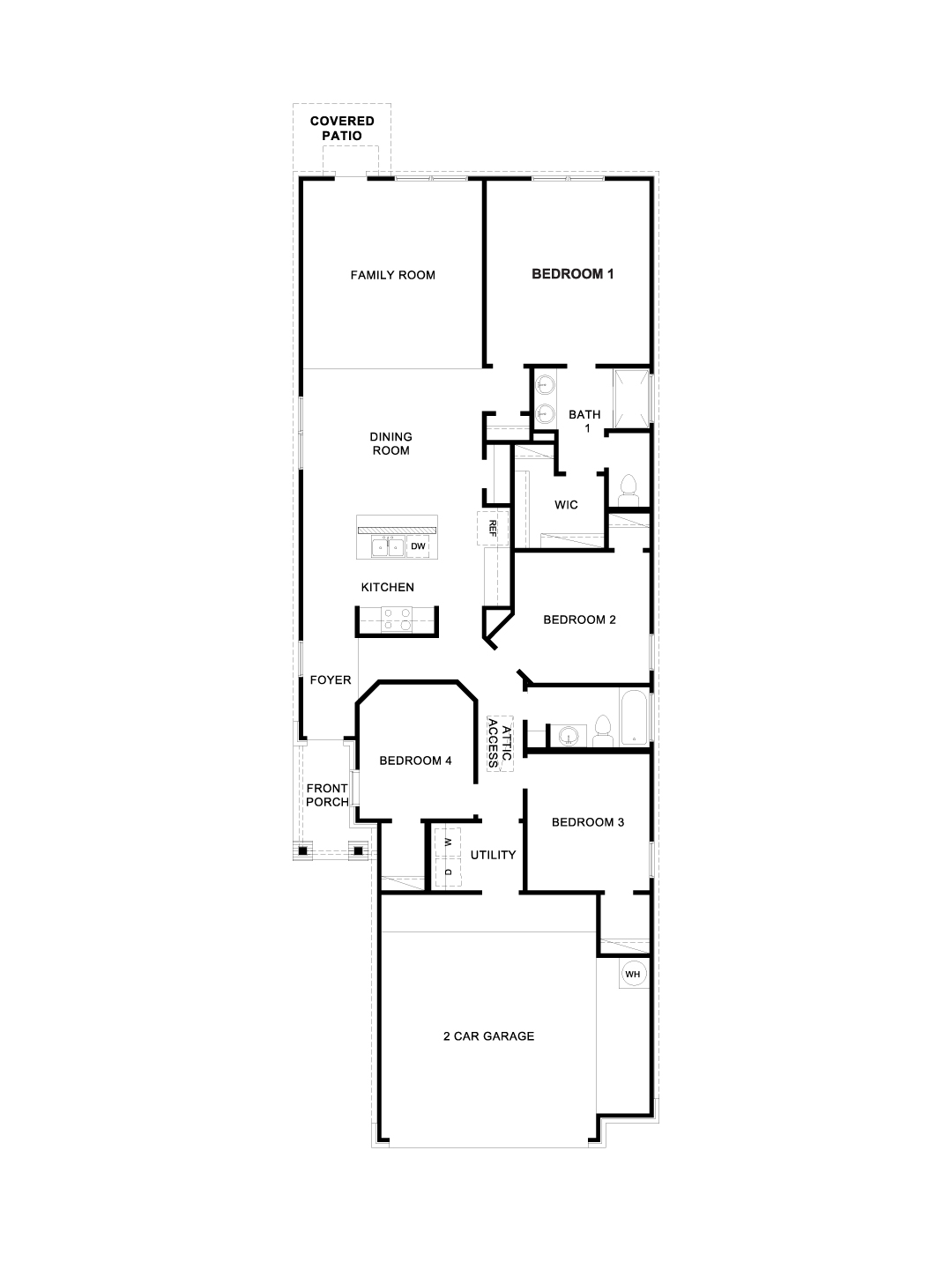
The Yellowstone II is a beautifully designed single-story home that masterfully maximizes its 1,670 square feet to accommodate 4 bedrooms and 2 bathrooms. This layout is a dream for those who love to host, as the home's heart features an oversized kitchen island that stays completely open to the dining and family rooms. The kitchen itself is a blend of style and high-end function, boasting elegant quartz countertops, a timeless tile backsplash, and premium stainless steel appliances that make every meal feel special. Privacy is at the forefront of the Yellowstone’s design. The main bedroom is a secluded retreat located directly off the family room, complete with a large walk-in shower and an expansive walk-in closet. In a thoughtful "split-wing" configuration, all three secondary bedrooms are situated on the opposite side of the home. This clever separation ensures a quiet sanctuary, while providing guests or family members with their own dedicated space.
By blending a large, open social core with smart bedroom placement, the Yellowstone II offers a lifestyle of both connection and quiet comfort. Whether you’re gathering around the extensive kitchen island for a weekend brunch or enjoying the peace of your private suite, this home is built to handle the demands of modern life with grace. Every inch of this four-bedroom floor plan has been utilized to create a sense of scale and ease, making it a perfect fit for anyone looking for the convenience of single-level living without compromising on space. This home comes included with a professionally designed landscape package and a full irrigation system as well as our America's Smart Home® package that offers devices such as the Qolsys IQ Panel, Video Doorbell, Alarm.com app, Honeywell Thermostat, a Smart Light Switch, Kwikset Smart lock, and more. Contact us today and find your home at Frontier.
Read more about this plan
{"InvalidUserInputMessage":"Please check your data entered again","ServerErrorMessage":"We couldn't share this page via email, try again later","SuccessResultCode":0,"InvalidUserInputResultCode":1,"ServerErrorResultCode":2,"HostName":"http://www.drhorton.com","DefaultPageUrl":"https://www.drhorton.com/texas/austin/mustang-ridge/frontier/floor-plans/1673","DefaultModalHeader":"Share this property."}
Facebook LinkedIn Email