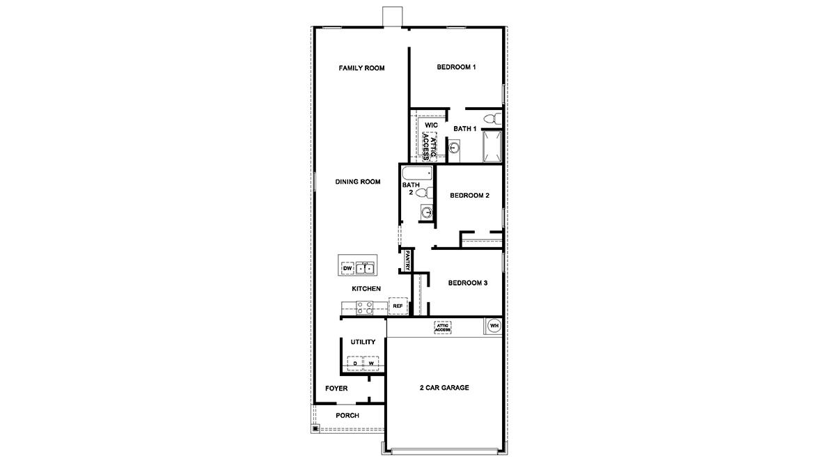
About this floor plan
Welcome to the Caprock floorplan built at Riverfield in Josephine, TX!
Experience the perfect fusion of comfort and functionality with this thoughtfully designed Express Series home floorplan. The custom, architecturally designed exterior, adorned with divided light windows and a front-facing garage with decorative hardware, presents a welcoming facade. A covered front porch leads to a raised panel fiberglass insulated door, offering a warm invitation inside.
Upon entry, a spacious foyer seamlessly transitions into the home's inviting living spaces. The kitchen, a hub of activity, features 30” cabinets with hidden hinges, granite or quartz countertops, and stainless-steel appliances, ensuring both style and practicality. A built-in sink, dishwasher, and ample pantry space cater to everyday needs.
The primary bedroom, a serene sanctuary, boasts an adjoining bathroom designed for effortless mornings. An elongated vanity with a sink and non-framed mirror, along with a walk-in shower and closet, provides ample space and comfort. Laminate wood plank flooring in the living areas and soft ½” carpet in the bedrooms create a cozy and comfortable atmosphere.
This Express Series home is further enhanced by a user-friendly smart home system and an innovative tech package, offering modern convenience and seamless connectivity. PLUS enjoy energy efficient features such as Energy Star certified doors, windows, HVAC, insulation and more! The combination of this floorplan’s well-designed layout and contemporary features makes it an ideal choice for comfortable living.
Photos shown here may not depict the specified home and features. Contact us today for more details!
Read more about this plan
Facebook LinkedIn Email