Davis Plan
Express Series
® |
Call for Information
3 Bed |
2.5 Bath |
2 Garage |
2 Story
1,489 Sq. Ft.
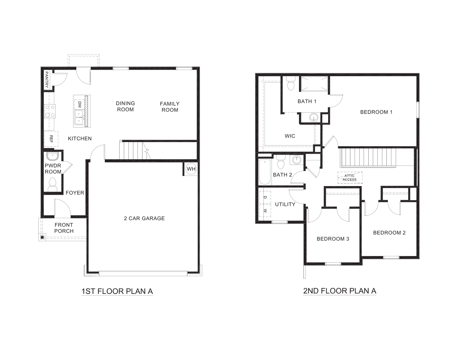
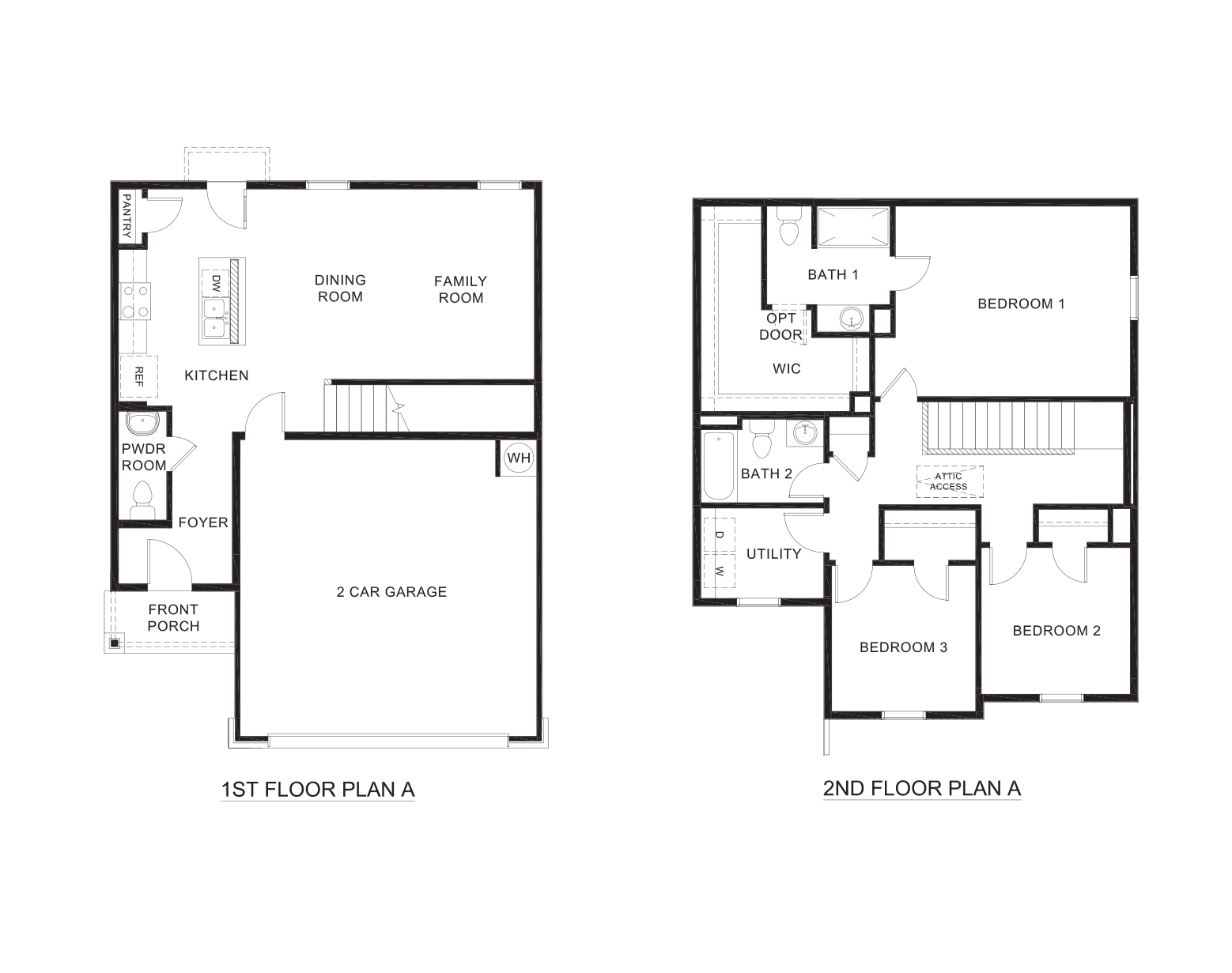
About this floorplan
The Davis Plan is located in the community of Leonard Crossing in the charming city of Leonard, Texas. Leonard Crossing homes feature brick or brick and siding elevations and are set on 40 ft lots, ensuring a cohesive neighborhood aesthetic.
This 2 story home features 1,489 sf. of living space, with 3 well-proportioned bedrooms provide ample space for family members or guests. 2-1/2 bathrooms offer convenience and privacy. An open concept living area creates a seamless flow between the island kitchen, dining, and living spaces, perfect for family activities and entertaining. The Modern well-equipped kitchen includes an electric range, ample counter space, and storage. The primary bedroom features an en-suite bathroom, providing a private retreat. In every bedroom you’ll have carpeted floors and a closet. Laminate flooring in the remainder of the home makes cleaning a breeze. Enjoy outdoor living with a covered patio, ideal for relaxing or entertaining guests. Full two car garage spaces for ample parking and storage. The energy efficiencies included in this new construction home will keep you comfortable in the heat of Summer and warm in the Winter months. Contact us today and find your home at Leonard Crossing. Photos shown here may not depict the specified home and features. Elevations, exterior/ interior colors, options, available upgrades that require an additional charge, and standard features will vary in each community and subject change without notice. Call for details.
Read more about this plan
Request information
{"InvalidUserInputMessage":"Please check your data entered again","ServerErrorMessage":"We couldn't share this page via email, try again later","SuccessResultCode":0,"InvalidUserInputResultCode":1,"ServerErrorResultCode":2,"HostName":"http://www.drhorton.com","DefaultPageUrl":"https://www.drhorton.com/texas/dallas/leonard/leonard-crossing/floor-plans/t30d","DefaultModalHeader":"Share this property."}
Facebook LinkedIn Email