About this floor plan
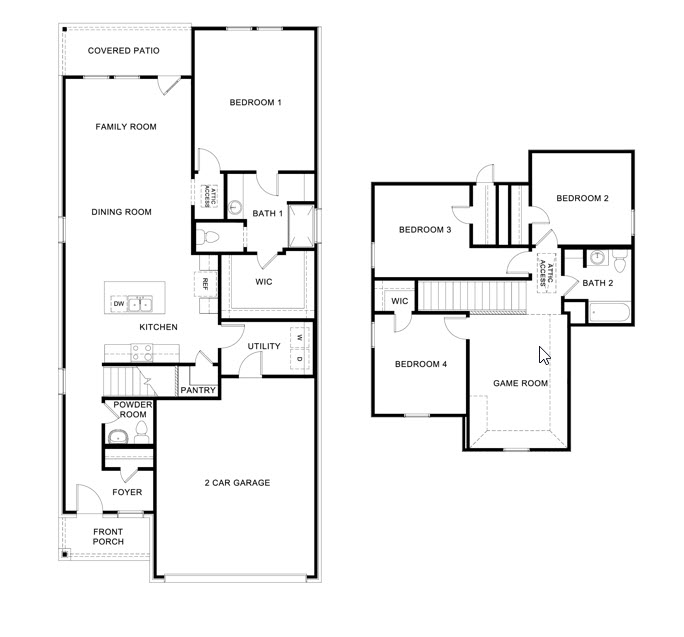
The Hanna is a thoughtfully designed two-story home offering approximately 2,087 sq. ft. of living space with 4 bedrooms, 2.5 bathrooms, a game room, and a 2-car garage. A welcoming front porch opens into a defined foyer that leads into an open-concept layout where the kitchen, dining room, and family room come together in one bright, connected living space ideal for both everyday living and entertaining. The kitchen features stainless steel appliances, generous counter space, a centrally located island, and a walk-in pantry for added storage. The adjacent dining room flows seamlessly into the family room and provides access to the covered rear patio for easy indoor-outdoor living. The private primary suite is located on the first floor and includes a spacious bedroom, a walk-in closet, and a full ensuite bath with dual vanities and a separate tub and shower. A convenient powder bath and dedicated utility room are also located on the main level, along with direct access to the two-car garage for everyday functionality. Upstairs, a centrally located game room creates a versatile second living area perfect for entertaining, relaxing, or working from home. Three additional bedrooms are positioned on the second floor, each with its own closet and convenient access to a full bathroom, providing comfortable accommodations for family or guests. With its open-concept main living area, first-floor primary suite, and flexible second-story layout, the Hanna offers comfort, space, and practical design for a variety of lifestyles.
Photos shown here may not depict the specified home and features and are included for illustration purposes only. Elevations, exterior/interior colors, options, available upgrades, and standard features will vary by community and may change without notice. May include options, elevations, and upgrades that require an additional charge. Landscaping and furnishings are décor items and are not included in the purchase price. Call a sales agent for more details.
Read more about this plan
Facebook LinkedIn Email