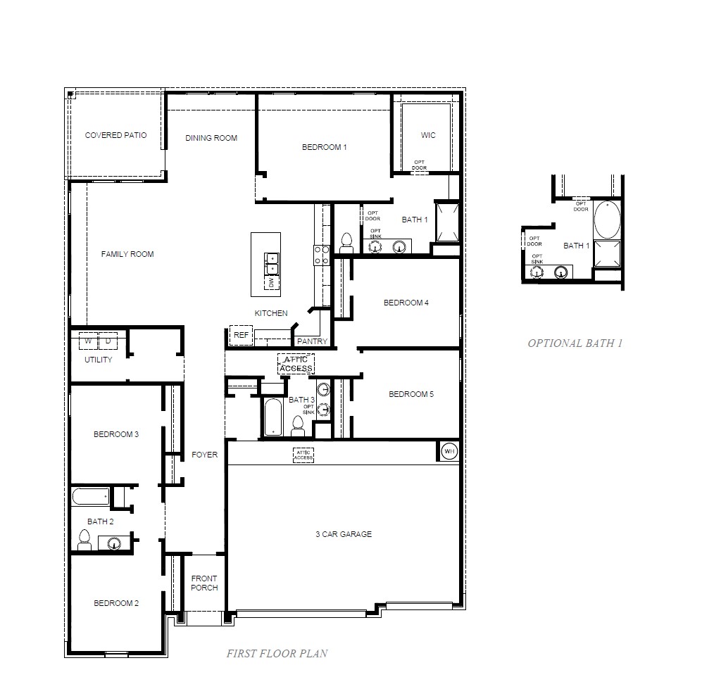
Maverick Floor Plan
Call for Information
| Tradition SeriesSM
5 Bed |
3 Bath |
3 Garage |
1 Story
2,439 Sq. Ft.
About this floor plan
The Maverick is a spacious and thoughtfully designed one-story home featuring 5 bedrooms, 3 full baths, and a 3-car garage—perfect for growing families or those who love extra space. A welcoming entry leads into the heart of the home, where an open-concept layout seamlessly connects the kitchen, dining area, and large family room—creating the ideal space for entertaining and everyday living. The kitchen is beautifully appointed with stunning countertops, stainless steel appliances, a convenient breakfast bar for additional seating, and a corner pantry that provides ample storage. Privately situated for comfort, the primary suite offers a relaxing retreat with an attractive en-suite bath featuring dual vanities, a private water closet, and a spacious walk-in closet designed for optimal organization. The additional bedrooms are generously sized and thoughtfully placed to provide flexibility for guests, home office space, or multi-generational living.
Step outside to enjoy the standard rear covered patio located just off the family room—perfect for outdoor dining, weekend gatherings, or simply unwinding at the end of the day. With its functional layout, generous living spaces, and stylish finishes, the Maverick plan delivers comfort, versatility, and modern living all in one exceptional design.
Read more about this plan
{"InvalidUserInputMessage":"Please check your data entered again","ServerErrorMessage":"We couldn't share this page via email, try again later","SuccessResultCode":0,"InvalidUserInputResultCode":1,"ServerErrorResultCode":2,"HostName":"http://www.drhorton.com","DefaultPageUrl":"https://www.drhorton.com/texas/houston/beasley/blue-heron-estates/floor-plans/2439","DefaultModalHeader":"Share this property."}
Facebook LinkedIn Email