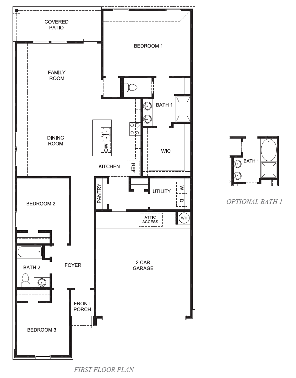
Caden Floor Plan
starting at $309,990
|Tradition SeriesSM
3 Bed |
2 Bath |
2 Garage |
1 Story
1,595 Sq. Ft.
Tour Emberly's home of the week.
Book a tour
About this floor plan
Discover elevated single-story living in The Caden, offering 1,595 sq. ft. of beautifully designed space with 3 bedrooms and 2 full bathrooms. Step through the elegant foyer and past the secondary bedrooms to find an inviting open concept living area designed for both comfort and style. The chef-inspired kitchen features gorgeous countertops, stainless steel appliances, and a spacious island, all seamlessly connected to the dining and living rooms—perfect for entertaining. Large living room windows fill the space with natural light and provide a stunning view of the covered back patio and private backyard, ideal for outdoor gatherings or quiet evenings at home. The primary suite serves as a private retreat, complete with dual vanities, an oversized walk-in shower, and a generous walk-in closet. Located in Emberly, a master-planned community featuring The Haven Amenity Village, that includes a clubhouse with fitness center, outdoor courtyard, resort-style pool, water park with splash pad, event lawn, playground, pickleball court, sand volleyball court, dog park, hike/bike trails, and more!
Facebook LinkedIn Email