Amber Floor Plan
Call for Information
| Tradition SeriesSM
3 Bed |
2 Bath |
2 Garage |
1 Story
1,288 Sq. Ft.
About this floor plan
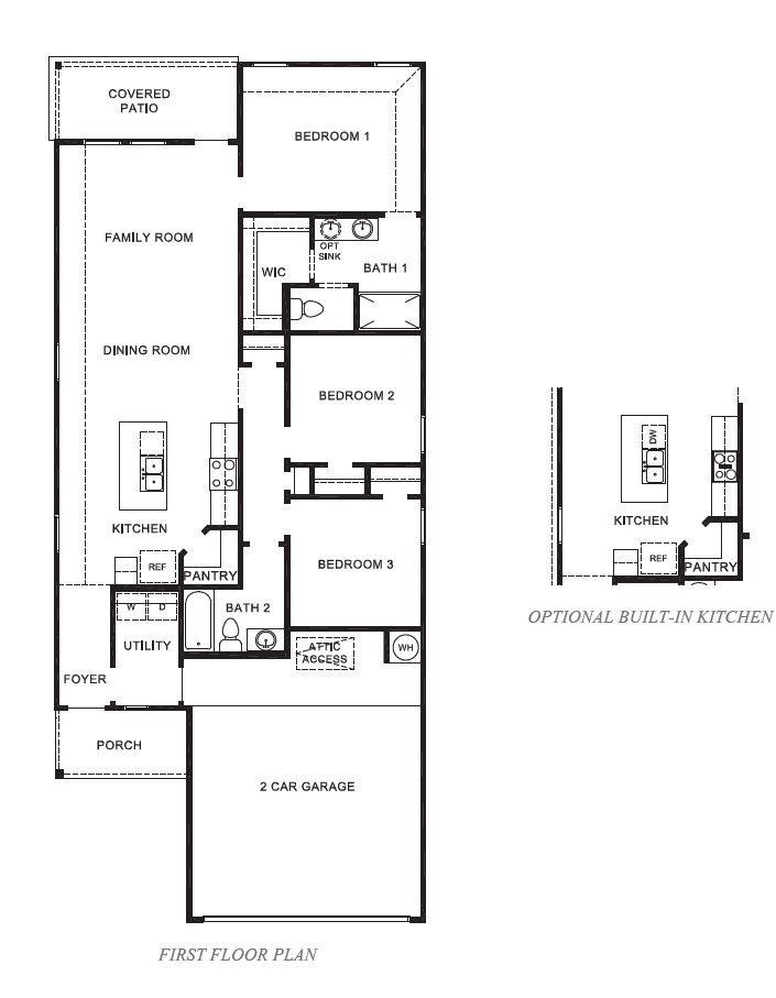
The Amber plan offers 1,288 square feet of thoughtfully designed living space with 3 bedrooms, 2 full bathrooms, and a 2-car garage. This one-story layout combines comfort, efficiency, and modern open concept living.
A welcoming front porch leads into the foyer, opening to a bright and spacious kitchen featuring a central island, pantry, and seamless flow into the dining and family room. The open-concept design creates the perfect setting for entertaining or everyday living, with natural light extending through the main living areas. The covered patio just off the family room provides an ideal outdoor retreat for relaxing or hosting guests.
The private primary suite is located at the rear of the home for added privacy and features a walk-in closet and en-suite bath with dual sinks and a spacious shower. Two secondary bedrooms are positioned toward the front of the home with convenient access to the second full bathroom, making them perfect for family members, guests, or a home office.
Additional highlights include a dedicated utility room, smart hallway storage, and direct access to the 2-car garage.
With its functional layout, open living spaces, and covered outdoor area, the 1288 plan is ideal for first-time buyers, downsizers, or anyone seeking comfort and efficiency in a stylish one-story home.
{"InvalidUserInputMessage":"Please check your data entered again","ServerErrorMessage":"We couldn't share this page via email, try again later","SuccessResultCode":0,"InvalidUserInputResultCode":1,"ServerErrorResultCode":2,"HostName":"http://www.drhorton.com","DefaultPageUrl":"https://www.drhorton.com/texas/houston/rosenberg/holly-ridge/floor-plans/x30a","DefaultModalHeader":"Share this property."}
Facebook LinkedIn Email