Richmond Floor Plan
starting at $315,990
| Tradition SeriesSM
4 Bed |
2 Bath |
2 Garage |
1 Story
1,783 Sq. Ft.
About this floor plan
Excited to talk new homes?
Text with us
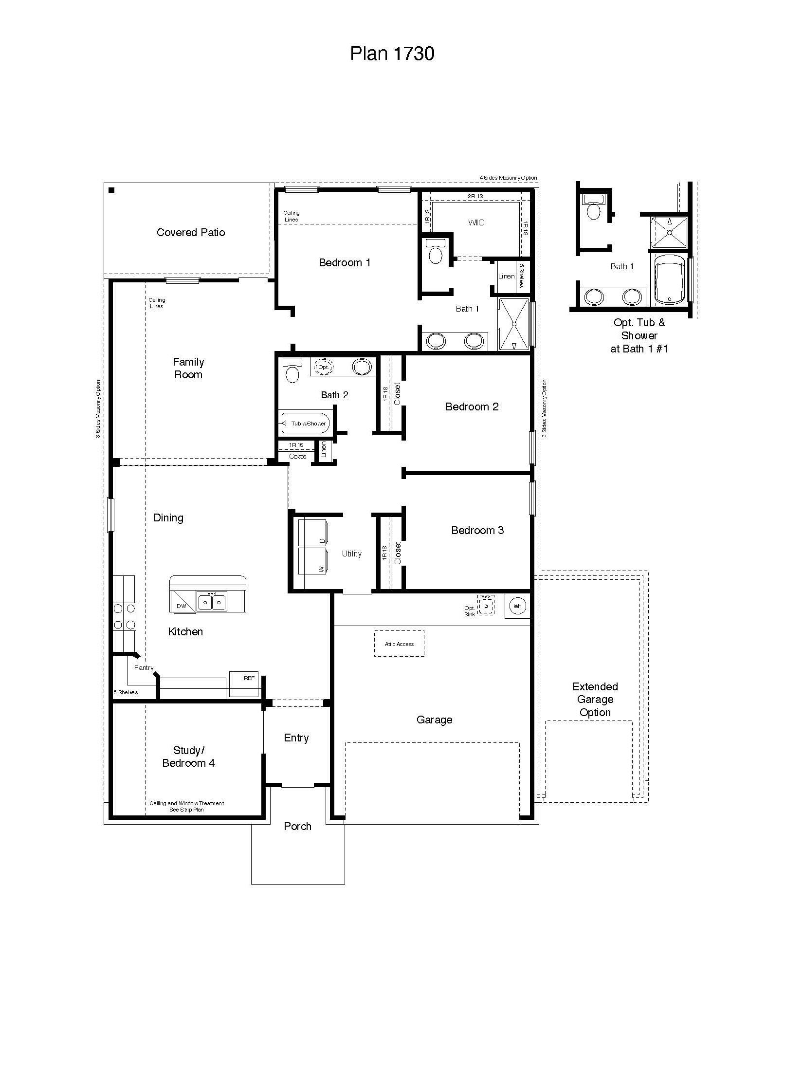
Step into the incredible Richmond floorplan at Foxborough in Waco, Texas. The 4 bedroom, 2-bathroom has a spacious 1,783 approximate square footage that is perfect as your new home. Entertain in the large, open space living room or gather in the beautifully designed kitchen. The kitchen features shaker-style cabinetry, granite countertops, and stainless-steel appliances. Attached to the great room, find yourself outside to enjoy time with nature under the backyard covered patio. You’ll also find cozy carpeted secondary bedrooms with easy access to the secondary bathroom. The laundry room is also centrally located for convenience. Retreat to the luxurious primary bedroom, where you’ll find the attached primary bathroom with its double vanity and the walk-in shower that has a tub and shower option, and a spacious walk-in closet.
The Richmond floorplan was designed with you in mind, with the 2-3 car garage option and the study with the option of a bedroom, this floorplan is truly unique. The smart home package is included to keep your home connected. Control and secure your home through the Qolsys smart panel, through your phone, or even with your voice. With comfort functionality, our Richmond floorplan is everything you are looking for. Why wait? Contact us today to learn more about the Richmond floorplan!
Read more about this plan
{"InvalidUserInputMessage":"Please check your data entered again","ServerErrorMessage":"We couldn't share this page via email, try again later","SuccessResultCode":0,"InvalidUserInputResultCode":1,"ServerErrorResultCode":2,"HostName":"http://www.drhorton.com","DefaultPageUrl":"https://www.drhorton.com/texas/killeen-temple-waco/waco/foxborough/floor-plans/1730","DefaultModalHeader":"Share this property."}
Facebook LinkedIn Email