Now Selling

Homes for sale at
The Birch at Spencer Ranch

Call for Information

|

Tradition SeriesSM

Community information

Monday 1:00 PM - 6:00 PM
Tuesday - Saturday 10:00 AM - 6:00 PM
Sunday 12:00 PM - 6:00 PM

About our community

Discover elevated living at The Birch at Spencer Ranch, a thoughtfully designed new home community nestled in picturesque Boerne, TX. Offering a blend of small-town charm and modern conveniences, this community places you minutes from I-10 and TX-46, making commute a breeze while keeping the serene Texas Hill Country at your doorstep.

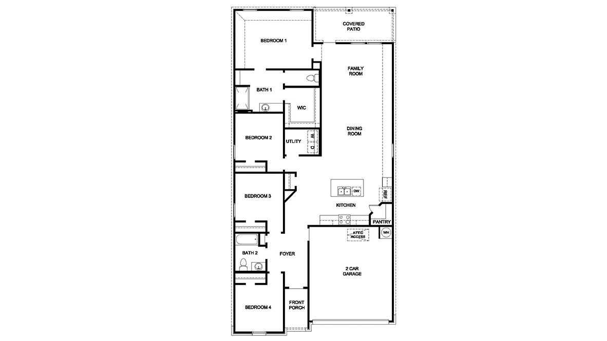
The Birch at Spencer Ranch features five expertly crafted one and two-story floor plans, 3 or 4 bedrooms, 2 or 3 bathrooms and spacious 2-car garages. Designed with modern lifestyle in mind, each home features and open-concept layout that seamlessly blends dining area, living spaces and kitchens, perfect for everyday living and effortless entertaining.

Inside, homeowners will enjoy modern finishes and upscale touches throughout. Kitchens are the heart of each home, featuring sleek quartz countertops, stainless steel appliances, white subway tile backsplashes and flat panel cabinetry that provide a clean, contemporary look. Large kitchen island offer additional prep space and seating, while deep, single-basin farmhouse sinks add both style and function.

Every home includes smart home technology to keep you connected and in control, along with stone-accented front exteriors that reflect the rugged elegance of the Texas Hill Country. Exteriors also come fully landscaped with full yard irrigation and select plans offer covered patios for relaxing or entertaining outdoors.

The Birch at Spencer Ranch offers more than just a home – it offers a lifestyle. Enjoy top-rated Boerne ISD schools, and spend weekends exploring nearby outdoor gems like Boerne Lake, the Cibolo Nature Center and Cascade Caverns. Tee off or unwind at Tapatio Springs Hill Country Resort or take a scenic day trip drive to Fredericksburg, Luckenbach and other hill country destinations.

For those that love local flavor, you’ll find shopping, wine tasting, breweries and eateries on Main St. in downtown Boerne – all just minutes from your door.

Come home to The Birch at Spencer Ranch, where timeless beauty meets modern home design. Contact us today to schedule a tour and find the perfect floor plan that fits your lifestyle.

List price has been reduced on select homes using all available discounts. Upon buyer’s request, seller agrees to adjust discount allocation towards closings costs, prepaids and/or the addition of available options which would result in increased sales price. Prices are subject to change.

Community amenities

  • HOA

Schools

Fabra Elementary School
Public | PK-5 1.1 mi.

Boerne Middle School North
Public | 6-8 1.5 mi.

Boerne High School
Public | 9-12 2.9 mi.


Community information

Monday 1:00 PM - 6:00 PM
Tuesday - Saturday 10:00 AM - 6:00 PM
Sunday 12:00 PM - 6:00 PM

Come shop our homes and get expert advice in person.

Area Information

Find Your New Home in Boerne, TX

Welcome to Boerne, Texas, offering a compelling mix of small-town charms and modern convenience, making it an excellent choice for your next move. This Hill Country town pairs a strong sense of community with a thriving economy, enhanced by D.R. Horton’s affordable new construction homes. Boerne's inviting streets feature historic architecture and picturesque surroundings, complemented by unique breweries and outdoor and cultural landmarks. Whether you're a professional, retiree, or first-time new homebuyer, the town’s welcoming atmosphere and economic opportunities make settling here appealing. Situated 29 miles to San Antonio International Airport, providing easy travel access.

Community Life in Boerne, Texas

Boerne's vibrant community life shines through its diverse events and attractions. Annual festivities include Dickens on Main, Boerne Boo, and the Kendall County Fair. Music enthusiasts enjoy the concerts at The Roundup Outdoor Music Venue, while art lovers’ frequent events hosted by the AgriCultural Museum and Arts Center. The town’s rich German heritage is celebrated with performances by the historic Boerne Village Band, which has been active since 1860. Local breweries such as award-winning Dodging Duck Brewhaus, Cibolo Creek Brewing Co., and 28 Songs Brewhouse offer celebrating the best of times with family, friends, and neighbors inside and out for all to enjoy. Boerne is also known for its unique attractions, including the Cave Without a Name and the Cibolo Nature Center, making every visit memorable.

Outdoor Fun in Boerne, Texas

Outdoor enthusiasts will find plenty to explore in Boerne and its surrounding Hill Country landscape. Enjoy the serenity of Boerne City Lake, perfect for fishing, paddleboarding, and kayaking. Hike through the Cibolo Center for Conservation, Guadalupe River State Park, or Kreutzberg Canyon Natural Area for breathtaking views and wildlife encounters. Boerne is also known for its unique attractions, including the Cave Without a Name and the Cibolo Nature Center, making every visit memorable. Nature lovers can visit nearby Cascade Caverns for a unique underground adventure. The region's natural beauty and outdoor amenities provide endless opportunities for relaxation and exploration. Golfers can refine their game at The Clubs of Cordillera Ranch, Tapatio Springs Hill Country Resort, or the Buckhorn Golf Course, which all provide excellent skill challenges.

Economic Importance in Boerne, TX

Boerne’s economy is bolstered by a mix of local businesses and major employers, creating a dynamic job market. EKF Diagnostics USA and COI Enterprises call this city home, while the Boerne School District and Kendall County are significant employers. The town also benefits from its proximity to Joint Base Camp Bullis, enhancing regional economic stability. With a thriving downtown and access to the larger San Antonio market, Boerne balances local opportunities with easy connections to broader economic hubs, making it a strategic location for professionals and entrepreneurs. Boerne is an exceptional place to call home, offering something for everyone. Families benefit from excellent schools in the Boerne Independent School District. Professionals enjoy proximity to major employers and an easy commute to San Antonio. Retirees are drawn to the peaceful charm of Hill Country living, paired with abundant cultural events and outdoor adventures. For those considering D.R. Horton’s new construction homes, Boerne provides the perfect setting for a fulfilling lifestyle where community, recreation, and opportunity converge seamlessly. Boerne means embracing a historical community looking to the future with outdoor adventures and economic growth. D.R. Horton’s affordable new construction homes are ideal for those exploring new home opportunities. With thoughtfully designed properties set in welcoming neighborhoods, these homes provide the perfect balance between modern living and historic charm of the Texas Hill Country.
{"InvalidUserInputMessage":"Please check your data entered again","ServerErrorMessage":"We couldn't share this page via email, try again later","SuccessResultCode":0,"InvalidUserInputResultCode":1,"ServerErrorResultCode":2,"HostName":"http://www.drhorton.com","DefaultPageUrl":"https://www.drhorton.com/texas/san-antonio/boerne/the-birch-at-spencer-ranch","DefaultModalHeader":"Share this property."}