About this floorplan
Excited to talk new homes?
Text with us
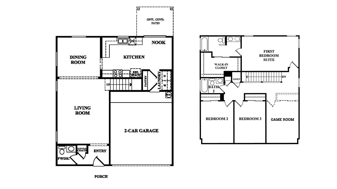
Welcome to The Canyons at Amhurst! Here you will find beautiful new homes on the popular northwest side of San Antonio. This community offers 10 one and two-story floor plans with 3 to 5 bedrooms, 2 to 3.5 bathrooms and two-car garages. Homes in this neighborhood feature modernity, style, and quality. Tour our floor plans to find formal dining areas (per plan) as well as open-concept living areas and kitchens complete with granite countertops, flat panel cabinets, classic white subway tile backsplashes and stainless steel appliances. 9-foot ceilings, deep, single basin farmhouse style kitchen sinks, and window blinds come standard, making these houses feel like homes.
Smart home technology is also a key feature and is included in each and every home. The ability to adjust the temperature, turn on the lights, enable your security system and control all aspects of your home is right at your fingertips. Front and back yards in The Canyons at Amhurst have been thoughtfully landscaped with Bermuda sod, and a full yard irrigation system ensures that your plants will thrive year-round. The front exteriors of these homes are equally impressive and include brick, stone, and/or stucco (per home) for a distinguished look. Situated right off Grosenbacher Rd. with proximity to Potranco Rd., this community provides easy access to restaurants, grocery shopping, Lackland Air Force Base and city conveniences. Residents enjoy desirable Northside ISD schools, including in-community Mora Elementary School and Brennan High School located nearby. Don’t miss your chance to make The Canyons at Amhurst your own. Schedule a tour today! List price has been reduced on select homes using all available discounts. Upon buyer’s request, seller agrees to adjust discount allocation towards closings costs, prepaids and/or the addition of available options which would result in increased sales price. Prices are subject to change.
Read more about this plan
Request information
Facebook LinkedIn Email