About this floor plan
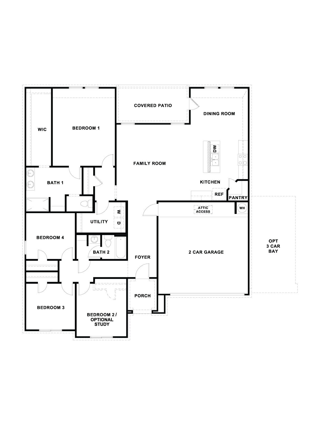
Check out the Dean at Hartland Ranch, a one-story floorplan featured in one of our communities in Lockhart, Texas. Designed across 1,885 square feet, this home includes 4 bedrooms (or an optional study in lieu of a bedroom) and 2 bathrooms. The Dean is available with 2 farmhouse exteriors to choose from. This floorplan is available with a 2 or 3 car garage option as well as multiple exterior color schemes to choose from. Walk through the covered entryway and make your way down the hall to the main living space. The kitchen, dining and family room are open, built to make cooking, eating, and entertaining a pleasant experience for family and friends. The kitchen includes quartz countertops, decorative tile backsplash, a large island with undermount sink, a corner pantry closet, stainless-steel appliances and 36’’ upper cabinets. Enjoy the natural light with four rear windows looking out to the backyard.
The secondary bedrooms and optional study are located at the front of the house, off the foyer. A small hall leads you to the bedrooms and one full bathroom. Each bedroom includes a closet, and the bathroom includes a shower/tub combination plus extra shelving for storage or décor. Whether you use these rooms as an office, child’s room or guest room, there is plenty of space for work, sleep and play. Off the family room, you’ll find the utility room, with extra shelving for all your laundry items. The primary bedroom is tucked away past the utility room, and this private ensuite is sure to be your oasis at the end of a long day. Enjoy the 5’ walk in shower, raised cultured marble vanity with double sinks, private toilet area with a door, and walk-in closet in this modern bathroom space.
The Dean includes vinyl flooring throughout the common areas of the home and the primary bedroom, and carpet in the secondary bedrooms. All our new homes feature a covered back patio, full sod, an irrigation system in the front and back yard, and full gutters. This home includes our America’s Smart Home base package, which includes the Amazon Echo Pop, Front Door Bell Deadbolt Lock, Home Hub, Thermostat, and a Smart Switch.
Contact us today and find your home at Hartland Ranch.
Read more about this plan
Facebook LinkedIn Email