About this floor plan
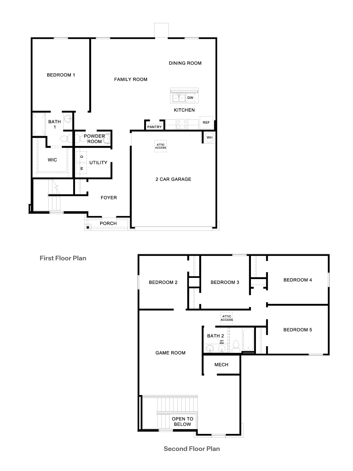
This 2,236 square feet two-story floorplan offers 5 bedrooms, 2.5 bathrooms, a game room, and a 2 car garage, thoughtfully designed for both everyday living and entertaining. The covered front porch opens into a welcoming foyer that leads into the heart of the home. The first floor features an open-concept family room, dining area, and kitchen, creating a seamless flow ideal for gatherings. The kitchen includes quartz countertops, a large island with undermount sink, a pantry closet, stainless-steel appliances and 42’’ upper cabinets. Tucked away on the main level, the private primary suite offers a walk-in closet and an ensuite bathroom with a single vanity and a walk-in shower. A conveniently located powder room and utility room complete the first floor.
Upstairs, a spacious game room provides a versatile secondary living space, perfect for a media room, playroom, or lounge area. Four additional bedrooms are located on the second floor, offering flexibility for family members, guests, or home offices. A centrally located full bathroom serves the secondary bedrooms, while attic and mechanical access add practical storage and functionality. With its well-balanced layout and multiple living spaces, this home offers comfort, flexibility, and room to grow—ideal for busy households and modern lifestyles. The Callahan home features our America’s Smart Home base package, which includes the Video Front Doorbell, Front Door Deadbolt Lock, Home Hub, Thermostat, and Smart Switches. Contact us today and find your home at Swenson Heights.
Read more about this plan
Facebook LinkedIn Email