Adams II Rear Load Floor Plan
Call for Information
| Tradition SeriesSM
3 Bed |
3 Bath |
2 Garage |
3 Story
1,827 Sq. Ft.
About this floor plan
Excited to talk new homes?
Text with us
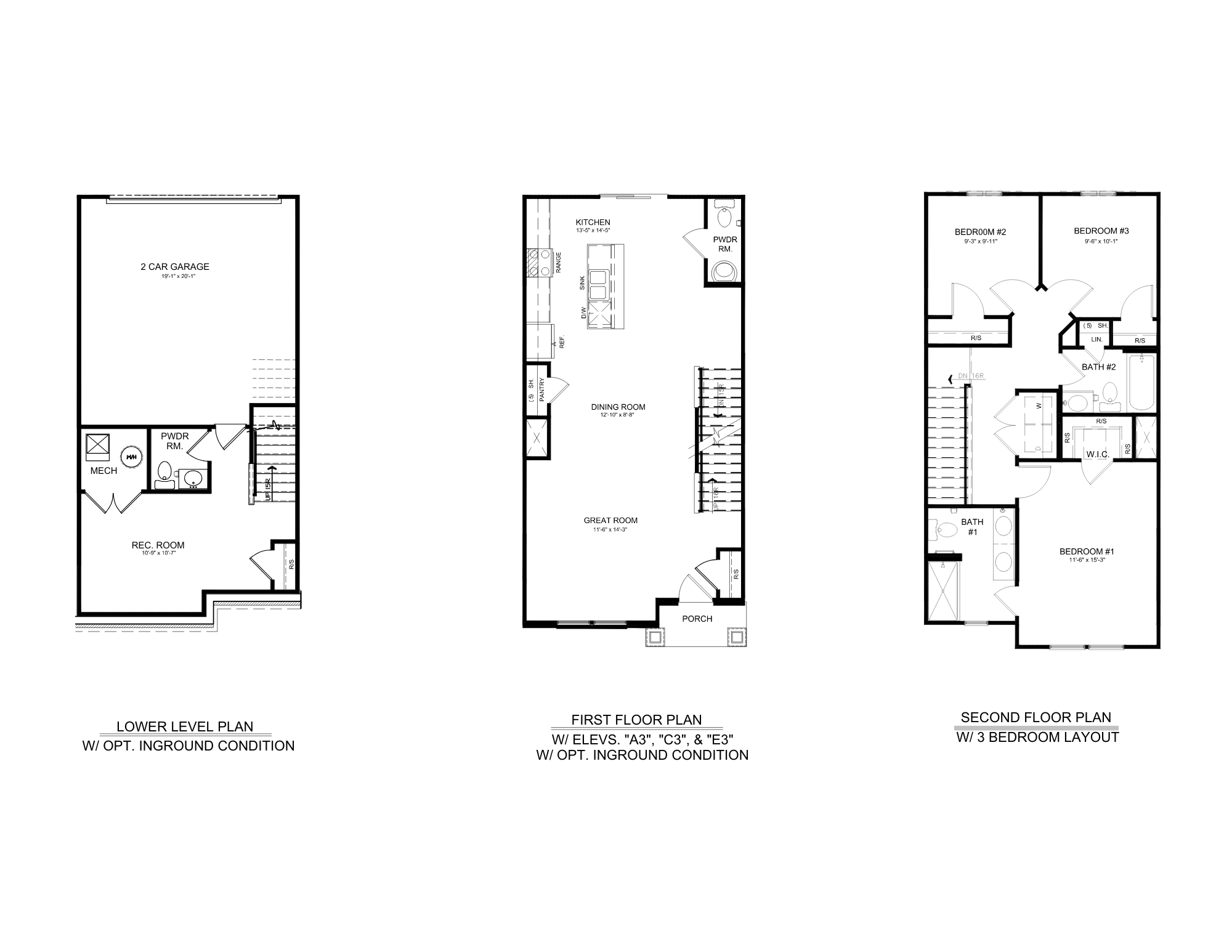
The Adams home offers two floorplan options with 1,827 square feet of thoughtfully designed living space. The Adams offers a smart three-level layout that blends flexibility with modern style. Lower Level Entry Homes: Enter through the welcoming lower-level foyer, where a private bedroom suite creates the perfect space for guests, a home office, or multi-generational living. A rear-load two-car garage keeps the exterior clean and charming while adding everyday convenience.
Upstairs, the heart of the home unfolds with an open-concept main living area. The spacious great room flows seamlessly into the dining area and kitchen — ideal for entertaining or casual nights in. A centrally located powder room adds convenience without interrupting the open feel.
The top level is your private retreat. The primary suite features a generous walk-in closet and a well-appointed bath with double vanities. Two additional bedrooms and a full bath complete this level, offering comfort and space for family or guests.
Main Level Entry Homes Step directly into a bright, open-concept main level where the great room, dining area, and kitchen connect seamlessly for effortless entertaining. A conveniently located powder room enhances functionality without sacrificing flow.
Downstairs, a staircase leads to a versatile lower level featuring a rear-entry two-car garage, an additional powder room, and a spacious rec room — perfect for movie nights, workouts, or a flexible bonus space tailored to your lifestyle. The top level is your private retreat. The primary suite features a generous walk-in closet and a well-appointed bath with double vanities. Two additional bedrooms and a full bath complete this level, offering comfort and space for family or guests.
Read more about this plan
{"InvalidUserInputMessage":"Please check your data entered again","ServerErrorMessage":"We couldn't share this page via email, try again later","SuccessResultCode":0,"InvalidUserInputResultCode":1,"ServerErrorResultCode":2,"HostName":"http://www.drhorton.com","DefaultPageUrl":"https://www.drhorton.com/virginia/southern-virginia/gloucester/riverclub-on-the-york/floor-plans/adm2","DefaultModalHeader":"Share this property."}
Facebook LinkedIn Email