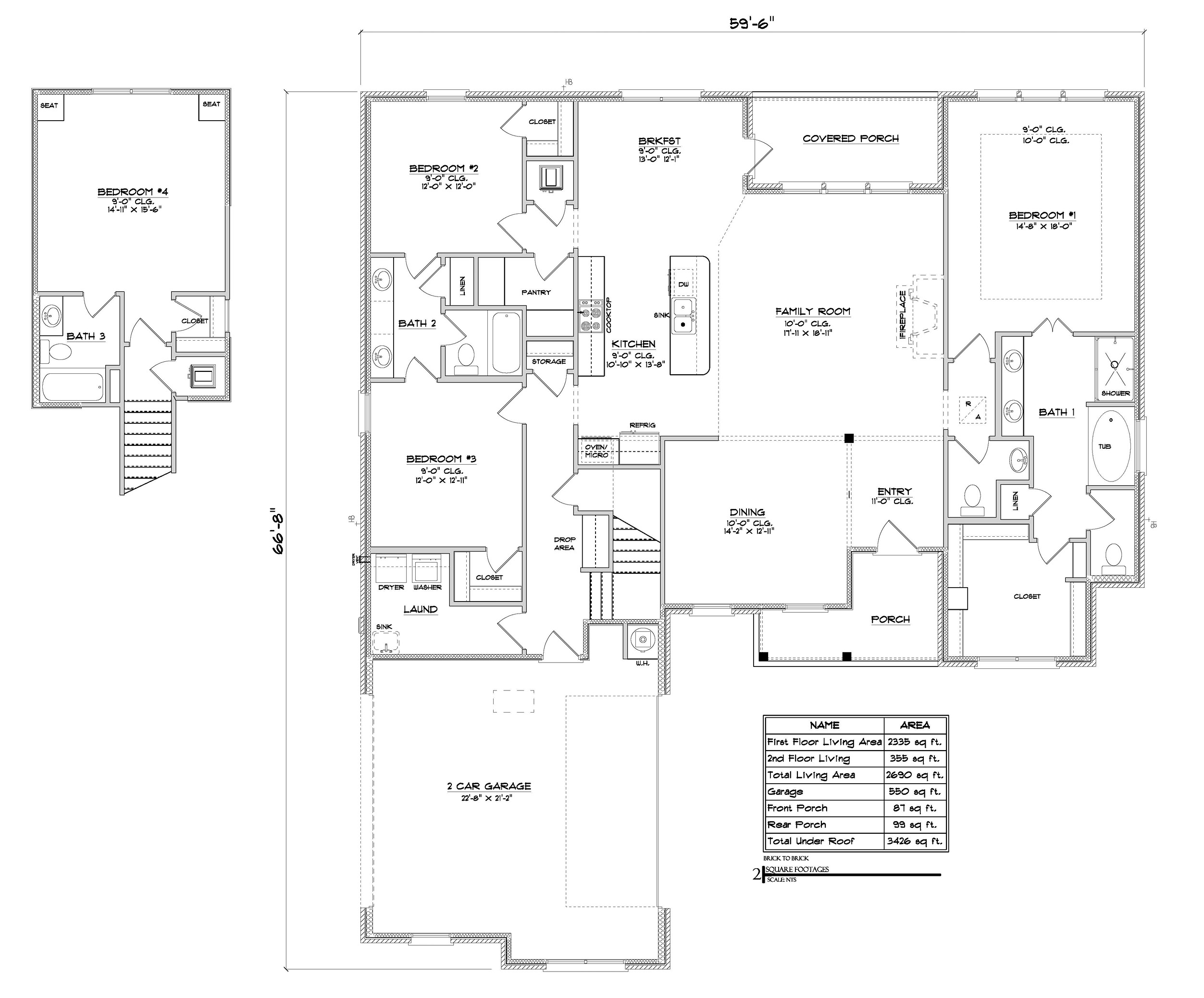
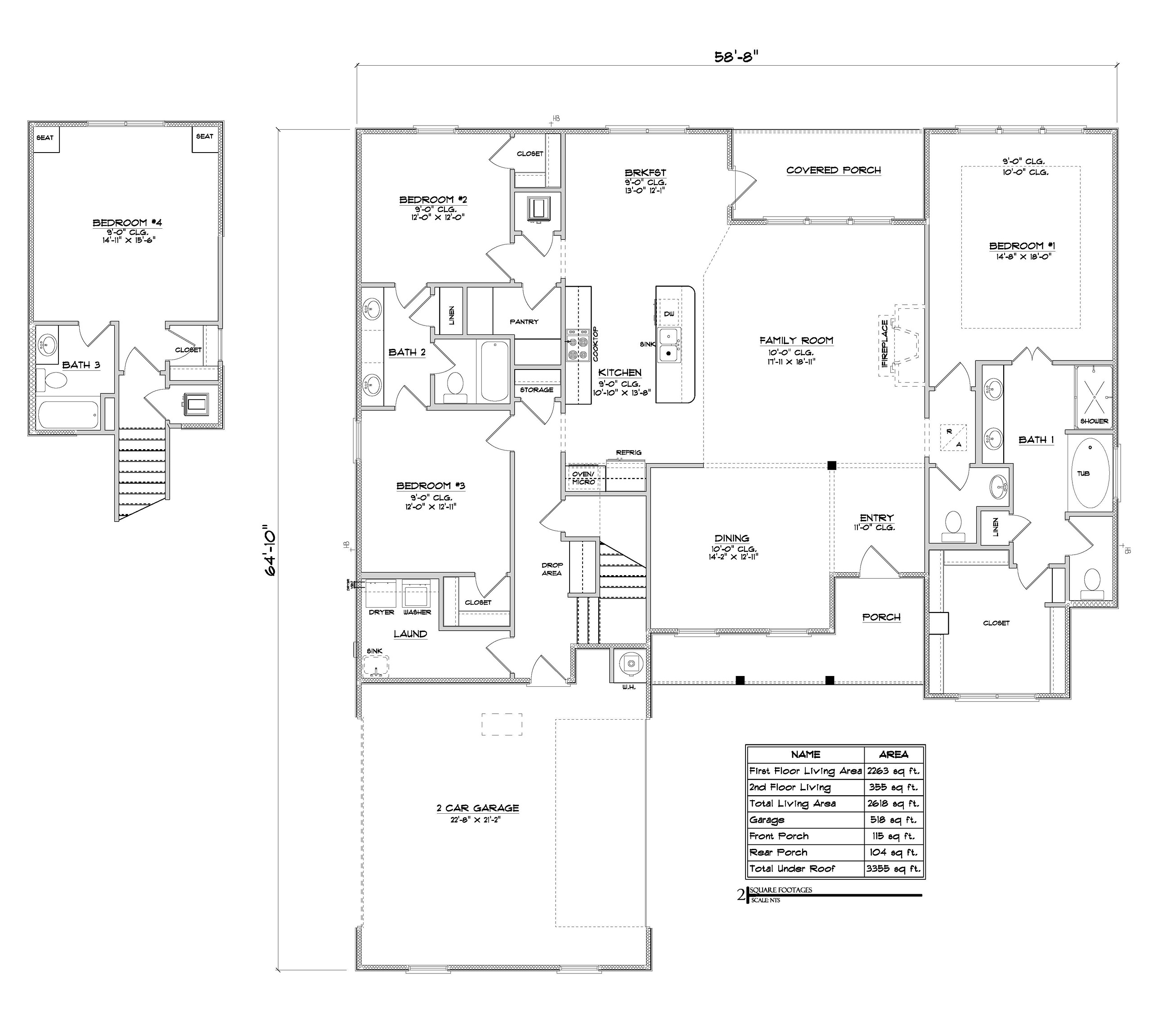
About this floorplan
Discover the Elm floorplan in the charming community of Rayne Plantation in Spanish Fort, Alabama! The Elm is a must see boasting 4 bedrooms, 3.5 bathrooms and a 2-car garage. It is a 2-story home with 2,618 square feet. A space for every imaginable use, this home exudes luxury and comfort. Enter through the heavy-wood door into the foyer. The open layout allows the formal dining room to open to great room area and continuously flow into the chef’s kitchen. The gourmet kitchen boasts beautiful painted cabinetry, gorgeous granite counters, a large work island, gas cooktop, stainless steel dishwasher, and built-in wall mounted oven and microwave.
The bar overhang is perfect for entertaining. A convenient breakfast nook off the kitchen includes access to the large rear covered patio. The owner's suite boasts plenty of room and features a spa-like primary bath. Enter the lavish primary bathroom with a large separate tub, double vanities, seamless glass & tiled shower, linen closet and separate water closet. Enjoy a large primary closet, utilized by sturdy wood shelving and windows for plenty of light. This floorplan showcases true “split” layout as two guest bedrooms and jack-and-jill style bath are on the opposing side of the home. A large laundry room and convenient “drop-zone” by door leading to garage includes a custom mud-bench for backpacks and coats. Retreat upstairs to a large 4th bedroom with walk-in closet and full bath. Schedule your tour to see this home in person and discover all that Rayne Plantation has to offer! Pictures are of similar home and not necessarily of subject property, including interior and exterior colors, options, and finishes. Buyer to verify all information during due diligence. Rayne Plantation is cocated off Hwy 31 in the sought-after Spanish Fort area. This beautiful community boasts a quiet atmosphere and exclusive amenities. A grand entrance welcomes you and sets the stage for immaculate landscaping, peaceful streets, and large, stately homes. You’ll enjoy amenities such as multiple exclusive lakes, two community pools and clubhouses, a family playground, communal grilling area, and more.
Read more about this plan
Request information
Facebook LinkedIn Email