About this floorplan
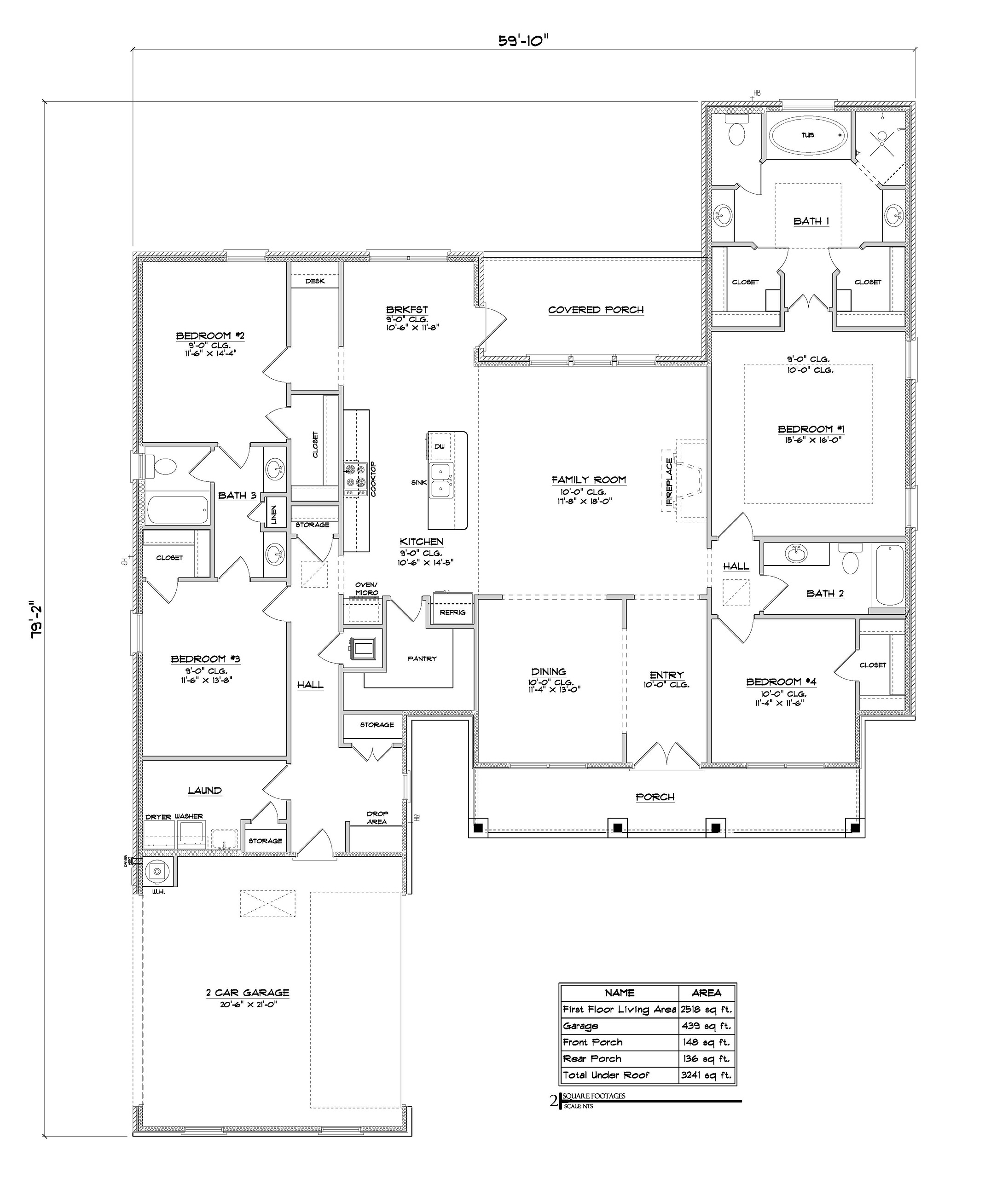
Discover our popular Pecan floorplan, from our premier Trualnd line in Rayne Plantation of Spanish Fort, Alabama! This stunning floorplan features a large family room that opens to the kitchen for easy conversation with family and friends. You will enjoy fabulous features including a fireplace, large island, farm sink, and oversized pantry to name a few.
The primary suite will be a great place to relax and unwind with a separate soaking tub, and walk in tile shower, private water closet, his and hers closets and separate vanities. Bedrooms 2 and 3 include a Jack and Jill bathroom with double vanity, and separate shower/tub room. Bedroom 4 has a bathroom just outside of the room which is also the guest bath. This home also includes a large covered back porch, great for entertaining. Come see this home and all the designer finishes included such as the trim, moldings, wood flooring, upgraded granite counters, and much more. Schedule your tour to make your new home in Rayne Plantation today! Comfort meets convenience in Rayne Plantation. Located off Hwy 31 in the sought-after Spanish Fort area, this beautiful community boasts a quiet family atmosphere and exclusive amenities. A grand entrance welcomes your family home and sets the stage for immaculate landscaping, peaceful streets, and large, stately homes. You’ll enjoy amenities such as multiple exclusive lakes, two community pools and clubhouses, a family playground, communal grilling area, and more. And all of this luxury comes with a great location! You’ll be zoned for awarded Spanish Fort schools and you’re a quick drive to grocery stores and outdoor mall as well as the I-10 interstate. Pictures are of similar home and not necessarily of subject property, including interior and exterior colors, options, and finishes. Buyer to verify all information during due diligence.
Read more about this plan
Request information
Facebook LinkedIn Email