About this home
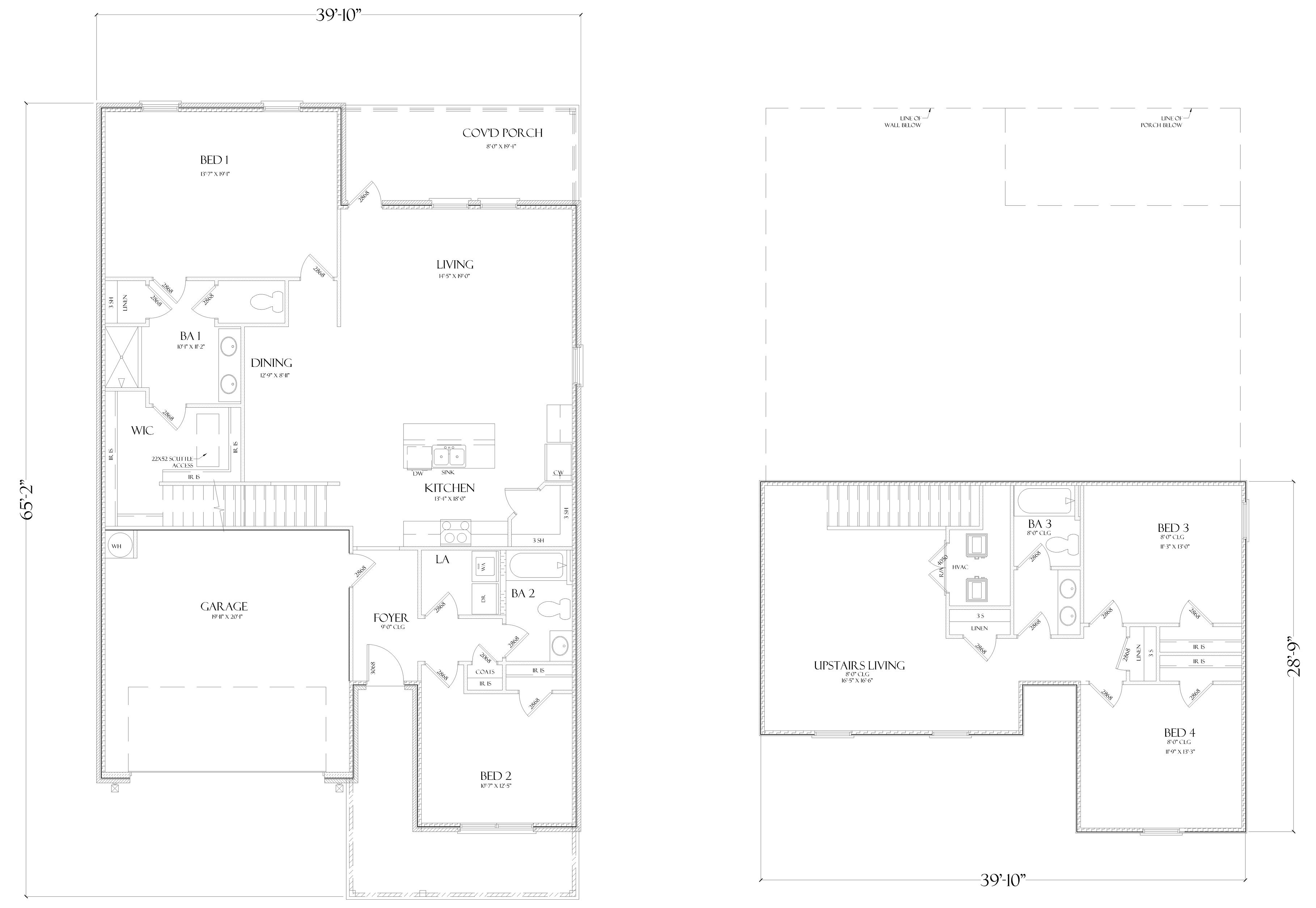
Welcome to 13136 Antler Hill Road, Spanish Fort, Alabama 36527. This is one of our most popular floorplans, The Ozark, and it is easy to see why. Stop by Biltmore at Stonebridge, our new home community located in Spanish Fort, Alabama, and tour our stunning Ozark floor plan. Just under 2,500 square feet, this beautiful two-story home offers 4-bedrooms, 3-bathrooms, a 2-car garage, and a seamless open layout. As you enter the home on the first floor, you are met with the foyer featuring a full bathroom and first additional bedroom, perfect for guests or a home office. Walking past the foyer is a large open concept living space including the kitchen, living room and dining area. The kitchen includes quartz countertops, an under-mount sink, a smooth top range, stainless steel appliances, a pantry, and a central island. With natural light and nearby covered patio access, the living and dining area are integrated perfectly.
Towards the back of the main living space and connected to the living room is the owner’s suite. This bedroom is a spacious and expansive space that includes an ensuite bathroom and walk-in closet. The double vanity, shower, and private water closet will provide a haven of relaxation at the end of each day. Returning to the foyer you will find the stairs leading up to the second floor. Heading up, you will enter a large living space, ideal for a playroom or home gym. Connected off this space are bedrooms three and four. These rooms share a full bathroom with dual vanities for extra space. The Ozark is equipped with Smart Home technology, including a Kwikset smart lock, SkyBell video doorbell, and a digital thermostat, all integrated with the Qolsys IQ touch panel for added convenience and security. Built to Gold FORTIFIED Home™ standards, this floor plan offers exceptional durability, potentially lowering your homeowner’s insurance costs (consult with a Sales Representative for details). This home also comes with a one-year builder warranty and a 10-year structural warranty for added peace of mind. See a sales representative for more information. Come discover the stylish sophistication of the Ozark in Biltmore at Stonebridge. Don’t miss the opportunity to make this exceptional home yours in this vibrant community!
Read more about this available home
Facebook LinkedIn Email