The Arden Floor Plan
starting at $344,900
|Tradition SeriesSM
4 Bed |
2.5 Bath |
2 Garage |
2 Story
1,885 Sq. Ft.
Tour Chelsea Acres's home of the week.
Book a tour
About this floor plan
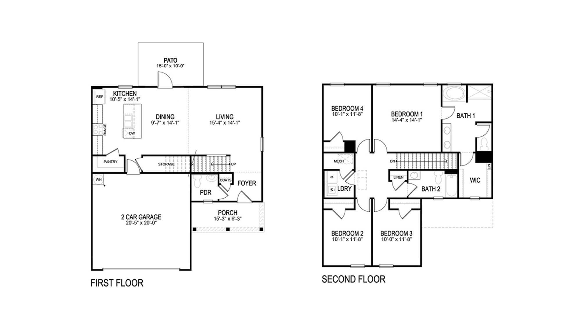
Welcome to the Arden Plan, a spacious two-story home offering 1,885 square feet of living space, complete with 4 bedrooms, 2.5 bathrooms, and a 2-car garage.
As you step onto the inviting covered porch and into the foyer, you’re greeted by convenient coat storage and a half bath tucked nearby. The entry leads directly into the open-concept main level, where the living room, dining area, and kitchen flow seamlessly together. Perfect for entertaining, the kitchen showcases granite countertops, stainless steel appliances, shaker-style cabinetry, a corner pantry, and a large center island with seating. Sliding glass doors extend your living space outdoors to the back patio, ideal for relaxing evenings or weekend cookouts.
Upstairs, all four bedrooms are thoughtfully arranged for privacy and comfort. The primary suite features a generous layout with a walk-in closet and spa-inspired ensuite bath including a dual-sink vanity, soaking tub, and separate shower. Three additional bedrooms share a full bath, while the nearby laundry room offers everyday convenience.
With modern finishes, abundant storage, and smart home technology, the Arden Plan delivers both function and style for today’s families. Schedule your tour today to see why this home is a perfect fit.
Facebook LinkedIn Email