Calhoun - Patriot Plans Floor Plan
starting at $353,900
|Tradition SeriesSM
4 Bed |
2.5 Bath |
2 Garage |
2 Story
2,164 Sq. Ft.
About this floor plan
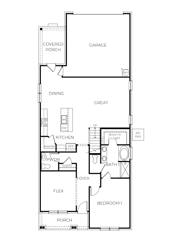
Welcome to our Calhoun floorplan showcased in the beautiful Patriot Farms community in Pike Road, Alabama—conveniently located less than 5 minutes away from the new Pike Road High School. This thoughtfully crafted two-story home offers 4 bedrooms, 2.5 bathrooms, and approximately 2,164 square feet of inviting living space, designed to feel both comfortable and effortlessly functional. As you step inside, you are greeted by a foyer, with convenient access to the flex space, primary bedroom suite, and an open concept living area and kitchen just beyond. This open‑concept kitchen, dining area, and great room create a bright, airy environment ideal for everyday living and entertaining, featuring soft‑close cabinets and drawers, Carrara Miami quartz countertops, stainless steel appliances, an eight‑inch under-mount sink with black fixtures, and an open pantry with built‑in shelving, all flowing naturally to the covered porch for seamless indoor‑outdoor enjoyment. The private primary suite serves as a peaceful retreat with a separate standing shower, a garden tub, a double vanity sink with Carrara Miami quartz countertops, Brantford black fixtures featured in all baths, a private water closet, and a spacious walk‑in closet. Moving to the second floor, you’ll find an additional 3 bedrooms as well as the laundry room. This home sits on a 40-foot lot that is corner eligible and includes a 2-car garage. Every home in Patriot Farms includes our Home Is Connected® Smart Home Technology Package, giving you the convenience of controlling your home from your smart device whether you are near or away. Photos may be of a similar home and not necessarily the subject property; images are representational only. Contact one of our New Home Specialists today to schedule your private tour!
Facebook LinkedIn Email