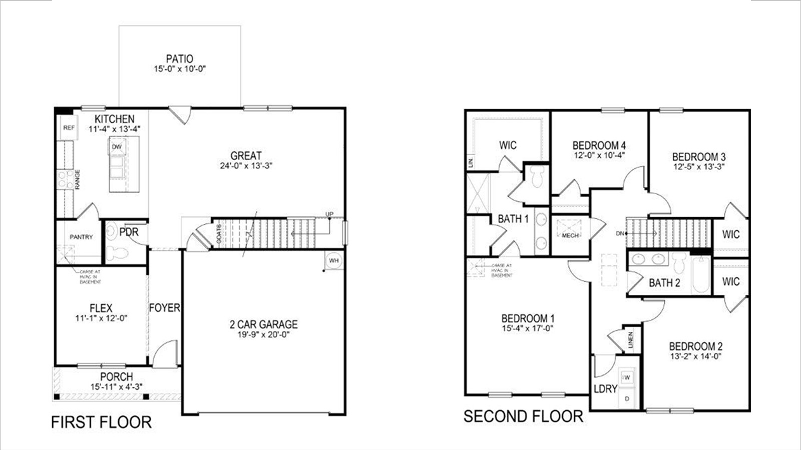
The Penwell Floor Plan
starting at $322,400
|Tradition SeriesSM
4 Bed |
2.5 Bath |
2 Garage |
2 Story
2,164 Sq. Ft.
Tour Parkway Gardens's home of the week.
Book a tour
About this floor plan
Introducing the Penwell, an incredible two-story floor plan covering 2,164 square feet and offering 4 bedrooms and 2.5 bathrooms. On the main level, you'll find a chef-inspired kitchen with a generously sized island and a walk-in pantry, perfect for those who love cooking. In addition, there's a flexible space that can be transformed into a formal dining room or a functional home office, catering to your specific needs. The kitchen seamlessly connects to a spacious living room, leading to an outdoor patio, creating an ideal space for entertaining guests. Moving to the second level, you'll discover Bedroom One, featuring a luxurious bathroom complete with a double vanity, separate shower, private bathroom, and a spacious walk-in closet. Additionally, there are 3 additional bedrooms, a full bathroom, and a convenient walk-in laundry room on this level, providing ample space for the whole family. The Penwell is crafted with quality materials and exceptional craftsmanship, showcasing meticulous attention to detail, and it comes with a one-year builder's warranty. Moreover, every home includes a one-year builder's warranty to provide you with extra peace of mind. It's important to mention that our smart home technology package is also included in the deal. The Smart Home Technology Package provided is designed for easy use and offers unmatched convenience, allowing you to effortlessly control various key features with just a simple touch. Some of the highlighted conveniences of this package include lighting automation, an IQ panel, a video doorbell, keyless front door entry, and the ability to manage the temperature from the comfort of your phone. Give us a call to schedule your personal guided tour of the Penwell today!
Facebook LinkedIn Email