Devon Floor Plan
starting at $416,990
|Tradition SeriesSM
3 Bed |
2.5 Bath |
2 Garage |
2 Story
1,590 Sq. Ft.
About this floor plan
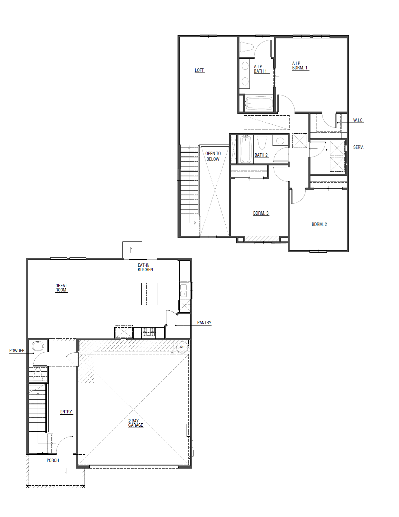
Designed to accommodate a wide range of lifestyles, the Devon is a two-story home offering approximately 1,590 square feet of thoughtfully planned living space. The first floor features a spacious open-concept kitchen and great room, perfect for entertaining and everyday living, with approximately 9-foot ceilings throughout the first floor, creating an airy, inviting atmosphere. The kitchen is equipped with Whirlpool® stainless-steel appliances including a range, microwave, and dishwasher, along with shaker-style cabinetry, quartz countertops with a full quartz backsplash, a center island with snack bar and pendant lighting, and a walk-in pantry. Black finishes throughout add a modern, cohesive touch to the home’s design.
The second floor offers a versatile loft area ideal for a home office, media space, or playroom. The main suite features an adjoining bathroom with dual vanity sinks and a large walk-in closet. Two additional bedrooms, a full bathroom, and a conveniently located laundry room complete this well-balanced layout.
Facebook LinkedIn Email