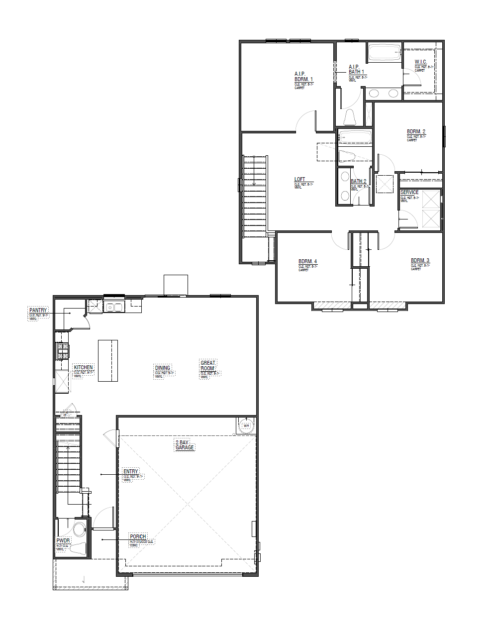
Stratford Floor Plan
Call for Information
| Tradition SeriesSM
4 Bed |
2.5 Bath |
2 Garage |
2 Story
1,775 Sq. Ft.
About this floor plan
The Stratford is a spacious two-story home offering approximately 1,775 square feet of living space with four bedrooms, two full bathrooms, a powder room, and an indoor laundry room. The first floor highlights an open-concept layout that seamlessly connects the kitchen, dining area, and great room, enhanced by approximately 9-foot ceilings throughout the first floor. The kitchen features shaker-style cabinetry, quartz countertops with a full quartz backsplash, a walk-in pantry, and a center island with pendant lighting and a snack bar. Whirlpool® stainless-steel appliances include a range, microwave, and dishwasher, while black finishes throughout the home provide a modern, polished aesthetic. A conveniently located powder room sits just off the entry near the staircase.
Upstairs, an open loft offers flexible space for a home office, homework area, or media room. The spacious main suite includes an adjoining bathroom with dual vanity sinks and a large walk-in closet. Three additional bedrooms, a full bathroom, and a laundry room complete the second floor, making the Stratford ideal for growing households or those who appreciate extra space.
{"InvalidUserInputMessage":"Please check your data entered again","ServerErrorMessage":"We couldn't share this page via email, try again later","SuccessResultCode":0,"InvalidUserInputResultCode":1,"ServerErrorResultCode":2,"HostName":"http://www.drhorton.com","DefaultPageUrl":"https://www.drhorton.com/california/central-valley/visalia/jacobglen/floor-plans/r317","DefaultModalHeader":"Share this property."}
Facebook LinkedIn Email