About this floor plan
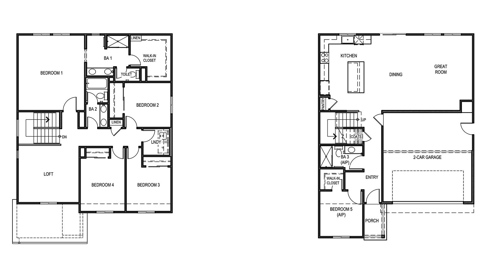
Welcome to Plan 2311, a luxurious two-story home designed for those seeking spaciousness, comfort, and modern amenities. Spanning 2,311 sq. ft., this impressive residence features five bedrooms, three bathrooms, and a two-car garage, ideal for those who love a large space or love to entertain. The kitchen is equipped with top-of-the-line Whirlpool stainless steel appliances, including a 30" freestanding electric range, microwave/hood combo, and built-in dishwasher, all complemented by elegant granite countertops that extend seamlessly into each bathroom for a cohesive look.
Indulge in relaxation with Bath 1's chrome-framed shower enclosure with fiberglass surround, while Bath 2 offers a convenient fiberglass tub/shower combo with a shower rod. Each bathroom features elongated toilets and stylish chrome fixtures, adding a touch of sophistication. The kitchen showcases Full Overlay Shaker style cabinets in timeless white, complete with sleek hardware and 30" uppers, providing ample storage space for culinary essentials. Enjoy the convenience of Deako switches, USB charging outlets strategically placed in the kitchen, and GFCI nightlight combo outlets in all baths for added safety. Energy-efficient features include surface mount LED lights throughout the ceilings and pre-wiring for ceiling fans in the Great Room and all bedrooms. Step outside to relax on the covered porch or retreat to the loft, offering additional living space for hobbies or relaxation. Additional features include Mohawk carpet and durable LVP flooring throughout, a tanked water heater for efficiency, and a roof adorned with long-lasting composition shingles coupled with solar panels for sustainable living. Security and convenience are paramount with Smartcode front door hardware, a WiFi-enabled garage door opener, and a side garage access door equipped with lighting. Plan 2311 is not just a home; it's a sanctuary where modern amenities meet thoughtful design, offering two walk-in closets, dual sinks in both upstairs bathrooms, and polished chrome hardware by Kwikset. Experience the perfect blend of functionality, elegance, and comfort in this exceptional residence, where every detail is crafted to enhance your living experience.
Read more about this plan
Facebook LinkedIn Email