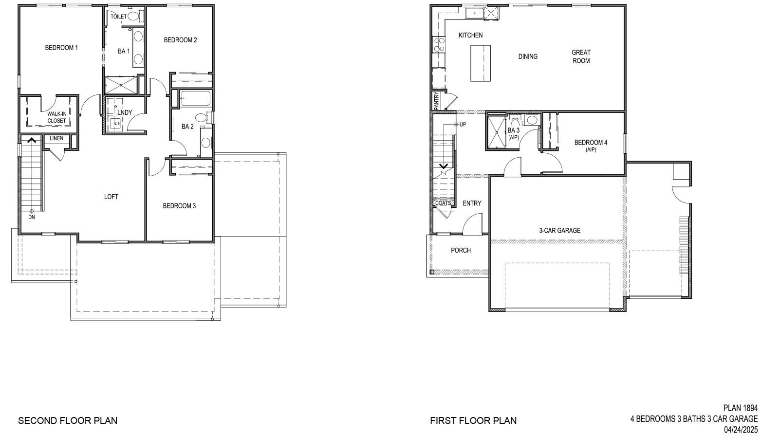
Plan 1894 Plan
Express Series
® |
Call for Information
4 Bed |
3 Bath |
3 Garage |
2 Story
1,894 Sq. Ft.
About this floorplan
Step into Plan 1894, a spacious 2-story home featuring 1,894 sq. ft. of living space. This home includes 4 bedrooms, 3 full baths, and a 3-car garage. Highlights include a full bedroom and bathroom downstairs; the primary bedroom has an expansive walk-in closet. Additionally, you will find a well-appointed upstairs laundry room and spacious loft, providing ample space for relaxation and everyday living.
The kitchen is outfitted with Whirlpool appliances including a 30” freestanding electric range, microwave/hood combo, and built-in dishwasher, all seamlessly integrated with elegant quartz countertops that match those found throughout the home, and stylish white Shaker style cabinets with 30" uppers.
Bathrooms feature chrome fixtures, elongated toilets, and granite countertops, ensuring both functionality and elegance. Enjoy the efficiency of Deako switches, USB charging outlets, Honeywell programable thermostat and GFCI nightlight combo outlets throughout. Mohawk carpet and luxury vinyl plank flooring enhance comfort throughout the home, with a WiFi-enabled garage door opener and solar to complete this well-equipped home. Plan 1894 emphasizes modern convenience and sustainability with the perfect blend of functionality, elegance, and comfort.
Read more about this plan
Request information
{"InvalidUserInputMessage":"Please check your data entered again","ServerErrorMessage":"We couldn't share this page via email, try again later","SuccessResultCode":0,"InvalidUserInputResultCode":1,"ServerErrorResultCode":2,"HostName":"http://www.drhorton.com","DefaultPageUrl":"https://www.drhorton.com/california/sacramento/yuba-city/montego/floor-plans/1894","DefaultModalHeader":"Share this property."}
Facebook LinkedIn Email