About this floorplan
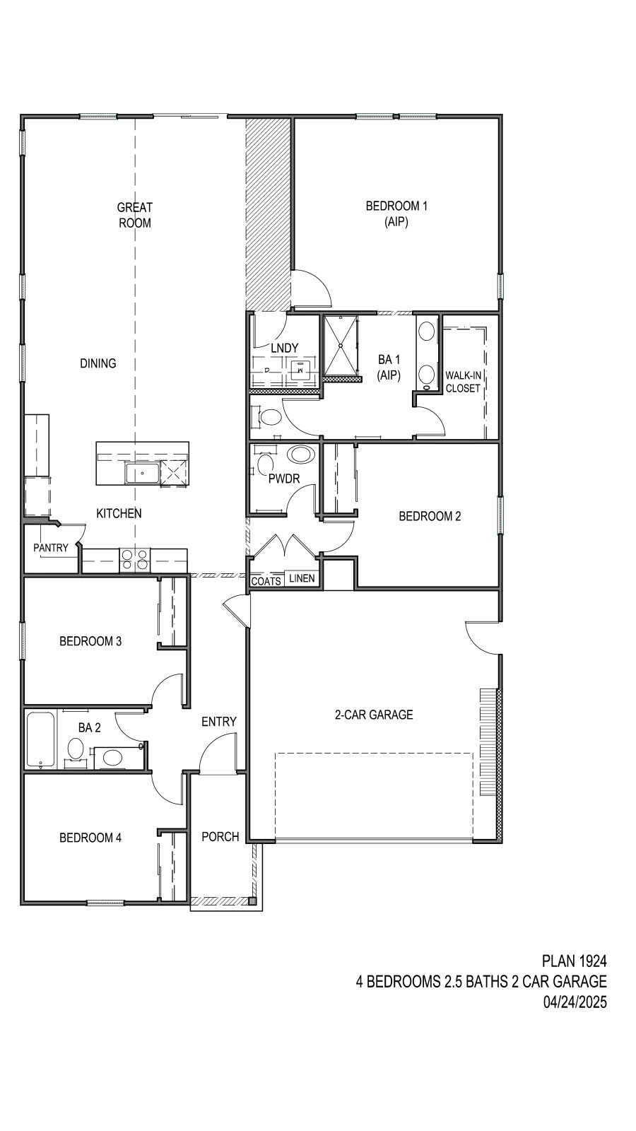
Welcome to the epitome of modern living with Plan 1924, a stunning single-story residence designed for the discerning new home buyer seeking comfort and style. Spanning 1,924sq. ft., this home features four bedrooms, 2.5 bathrooms, and a two-car garage, offering ample space for families and entertaining.
The kitchen is equipped with top-of-the-line Whirlpool stainless steel appliances, including a 30” freestanding electric range, microwave/hood combo, and built-in dishwasher, all seamlessly integrated with elegant quartz countertops that match those found throughout the home. The kitchen also showcases Shaker style cabinets in pristine white, offering both functionality and timeless appeal. Indulge in luxury within Bath 1's chrome-framed shower enclosure with fiberglass surround, while Bath 2 offers a relaxing fiberglass tub/shower combo. Every bathroom is adorned with elongated toilets and chrome fixtures. Enjoy the convenience of Deako switches, USB charging outlets in key areas, and GFCI nightlight combo outlets in all baths. Energy-efficient LED lights grace the ceilings per plan, with pre-wiring for ceiling fans in the Great Room and all bedrooms, ensuring year-round comfort. Step outside to a dining room that flows seamlessly onto a covered patio, perfect for hosting gatherings or enjoying quiet evenings outdoors. Additional features include Mohawk carpet and luxury vinyl plank flooring throughout; a roof fitted with long-lasting composition shingles enhanced by solar panels for sustainable energy solutions. For security and convenience, the home is equipped with Honeywell programable thermostat, a WiFi-enabled garage door opener, and a side access door with integrated lighting. Plan 1924 is more than just a home; it's a sanctuary where modern amenities meet timeless design, offering large walk-in closets, a spacious owner's suite Discover the perfect blend of functionality, elegance, and comfort in this exceptional residence, where every detail is crafted to enhance your living experience.
Read more about this plan
Request information
Facebook LinkedIn Email