About this floor plan
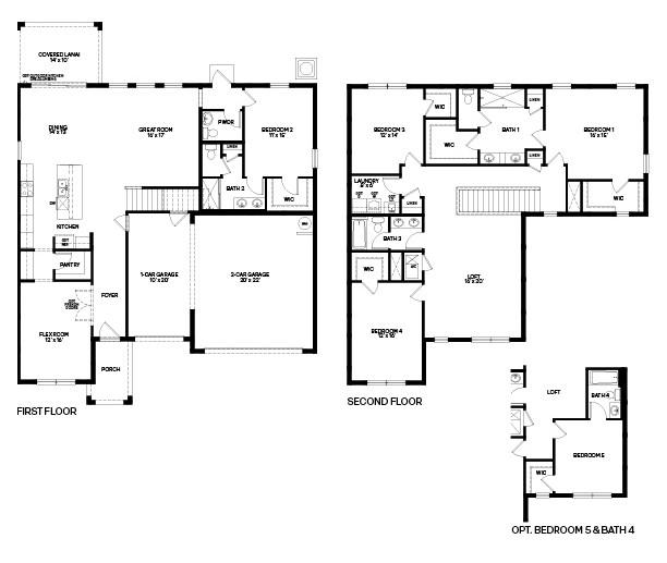
The Crawford by D.R. Horton is a masterfully designed two-story residence offering 3,200 square feet of versatile living space, including four bedrooms, a flex room, and a sprawling loft. The home's exterior is available in three distinct architectural elevations—all featuring a functional three-car garage split into two-car and one-car segments. Inside, the home is anchored by high-end finishes, including elegant quartz countertops in the kitchen and bathrooms, providing a durable, non-porous surface that blends luxury with low-maintenance living.
The main level is designed for seamless entertaining, centered around an open-concept great room, a gourmet kitchen with a walk-in pantry, and a spacious dining area. Sophisticated Mohawk® Revwood Select Plank Flooring flows through these high-traffic areas, offering the timeless look of hardwood with superior moisture resistance. Near the foyer, a flex room provides a quiet space for a home office or formal sitting area, while the large covered lanai at the rear offers the perfect footprint for an optional outdoor kitchen. The second floor serves as a private retreat, featuring a massive loft that acts as a central family hub. The primary suite is a true sanctuary featuring a private bath and an expansive walk-in closet. Three additional bedrooms, each with its own walk-in closet, share two full bathrooms and easy access to the dedicated laundry room. Beyond its spacious layout, the Crawford is built for the future with the Home is Connected® smart home package. This integrated system includes a Qolsys IQ touchscreen panel, a video doorbell, programmable thermostats, smart door locks, and automated light switches—all controllable from a single smartphone app. These smart features pair perfectly with the home's energy-efficient design, which includes high-performance insulation, Low-E windows, and energy-efficient appliances to help reduce utility costs while maintaining year-round comfort.
Read more about this plan
Facebook LinkedIn Email