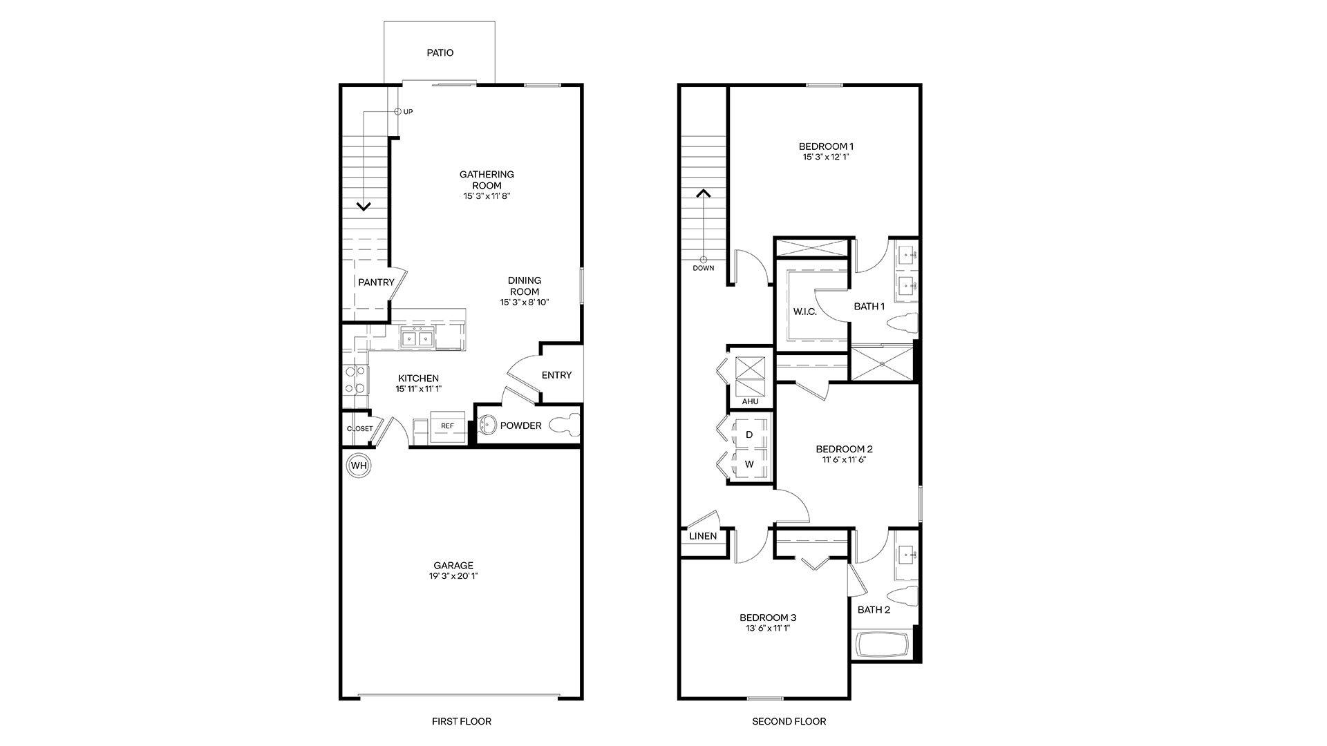
About this floor plan
D.R. Horton is excited to introduce new townhomes in the highly anticipated Diamond Springs community in Jacksonville, Florida. As the first lagoon community in Duval County, Diamond Springs is scheduled to release for sale in late Spring 2026, offering a unique blend of resort-style living and everyday convenience. The Diamond Springs townhomes are thoughtfully designed to support a variety of lifestyles, featuring modern architecture, open-concept floor plans, and stylish, low-maintenance living. With carefully selected finishes and functional layouts, these homes are ideal for first-time buyers, professionals, and those looking to simplify without sacrificing comfort or quality. Each townhome includes D.R. Horton’s Home Is Connected® smart home technology, providing enhanced security, efficiency, and convenience at your fingertips.
Residents of Diamond Springs will enjoy access to an expansive crystal-clear lagoon, perfect for swimming, kayaking, and paddleboarding. The community also features scenic nature trails for walking and biking, a spacious event lawn, and a dog park for outdoor enjoyment. Added features such as solar-powered streetlights and a gated entry contribute to a comfortable and welcoming neighborhood environment.
Conveniently located with easy access to I 10 and I 295, Diamond Springs makes commuting throughout Jacksonville simple and efficient. Whether you’re heading to work, exploring the city, or enjoying a weekend getaway, everything is within reach. Discover a fresh approach to townhome living in Diamond Springs, where resort-style amenities meet modern design. Be among the first to call this exciting new community home. Click “Request Information” to receive the latest updates on Diamond Springs townhomes.
Read more about this plan
Facebook LinkedIn Email