Surfside   Plan 
					
Express Series® | 
														starting at  $258,990					
				 
				
					3 Bed   | 
					2 Bath  | 
					1 Garage  | 
					1 Story 
				
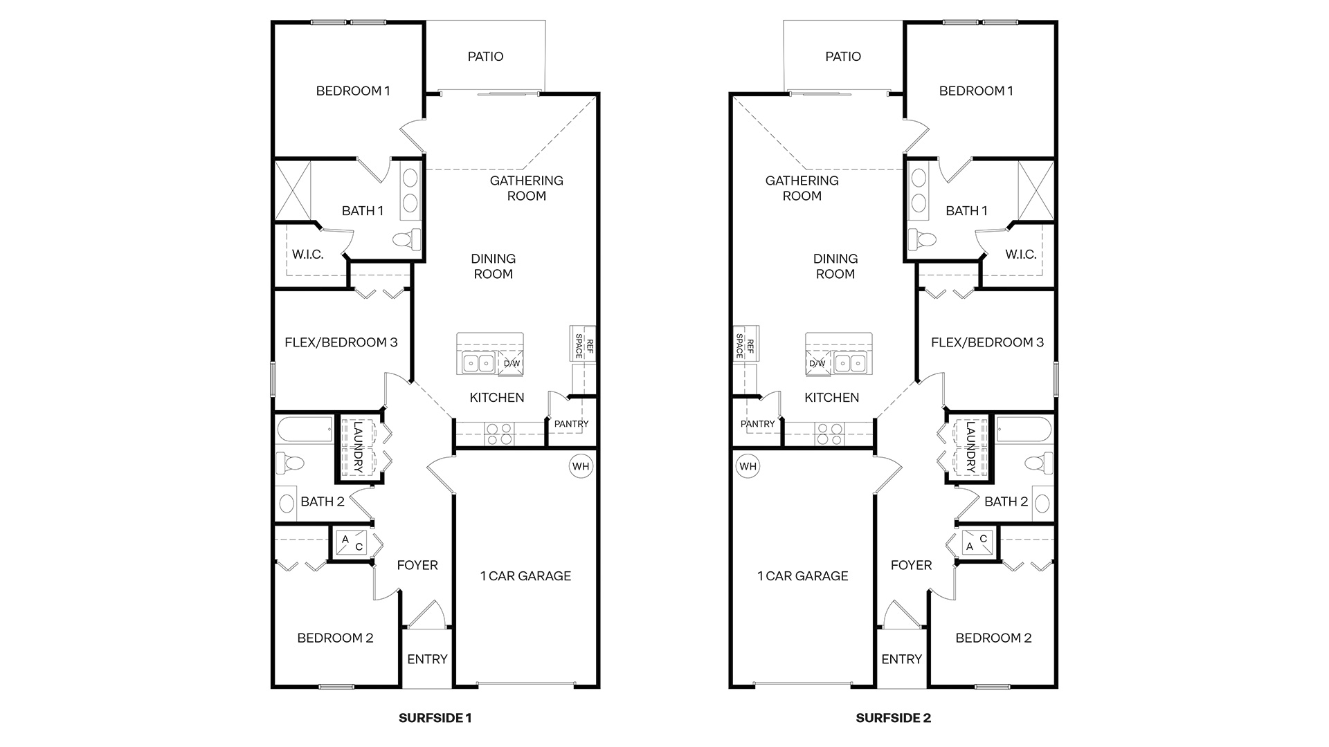
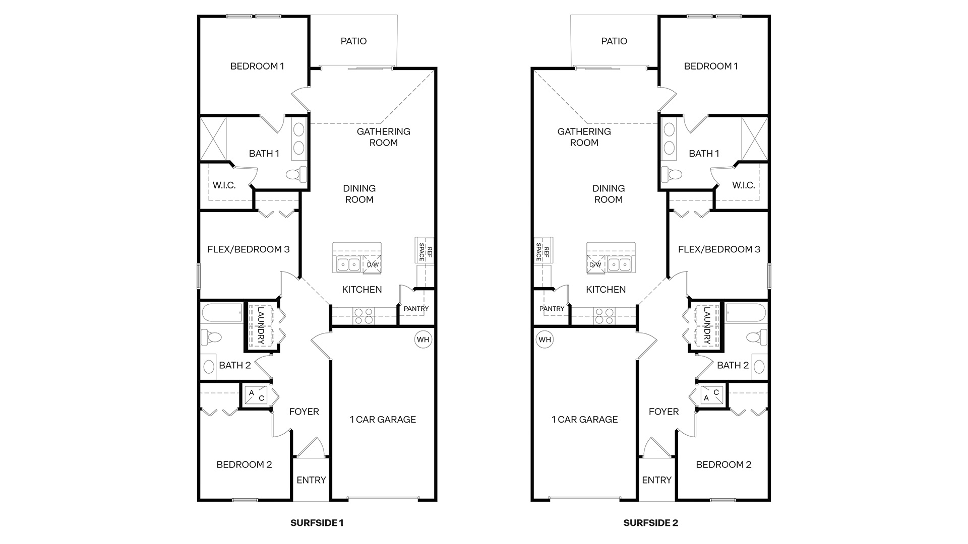
				1,198 Sq. Ft. 
				
				
	
		About this floorplan 
							
						Embrace Flagler County living in the Palm Coast Villas, a collection of new villa homes throughout Palm Coast, Florida built by D.R. Horton. Located in established family-oriented neighborhoods with no HOA fees, the spacious Surfside floor plan is 1,198 sq ft with 3 bedrooms and 2 bathrooms. These thoughtfully designed villas feature an open concept design which helps maximize your living experience. The highlight of a new Palm Coast Villa is the state-of-the-art kitchen which include stainless finish appliances and quartz countertops. You will also find these new homes equipped with smart home technology, allowing you to easily control essential home functions and security.
						
							Future residents can select which area of Palm Coast is best suited for their lifestyle with Palm Coast Villas built throughout various homesites in established communities. All homes are conveniently located near the Palm Coast Town Center featuring a variety of restaurants and shopping for all your daily needs. European Village is minutes away which boasts locally owned restaurants and shopping in a quaint and colorful plaza. Homeowners will love living around the corner from pristine Flagler beaches and beautiful golf courses to enjoy all year long. Don’t miss out on the opportunity to call Palm Coast Villas home. Schedule your tour today.
						
						
							Read more  about this plan  
						 
					
		Request information 
	 
			 
		 
		
		
	 
	
	
 
	
	
 
 
	{"InvalidUserInputMessage":"Please check your data entered again","ServerErrorMessage":"We couldn't share this page via email, try again later","SuccessResultCode":0,"InvalidUserInputResultCode":1,"ServerErrorResultCode":2,"HostName":"http://www.drhorton.com","DefaultPageUrl":"https://www.drhorton.com/florida/north-florida/palm-coast/palm-coast-villas/floor-plans/1198","DefaultModalHeader":"Share this property."}
 
Facebook LinkedIn Email