Monroe Floor Plan
Call for Information
| Tradition SeriesSM
3 Bed |
2.5 Bath |
1 Garage |
2 Story
1,846 Sq. Ft.
About this floor plan
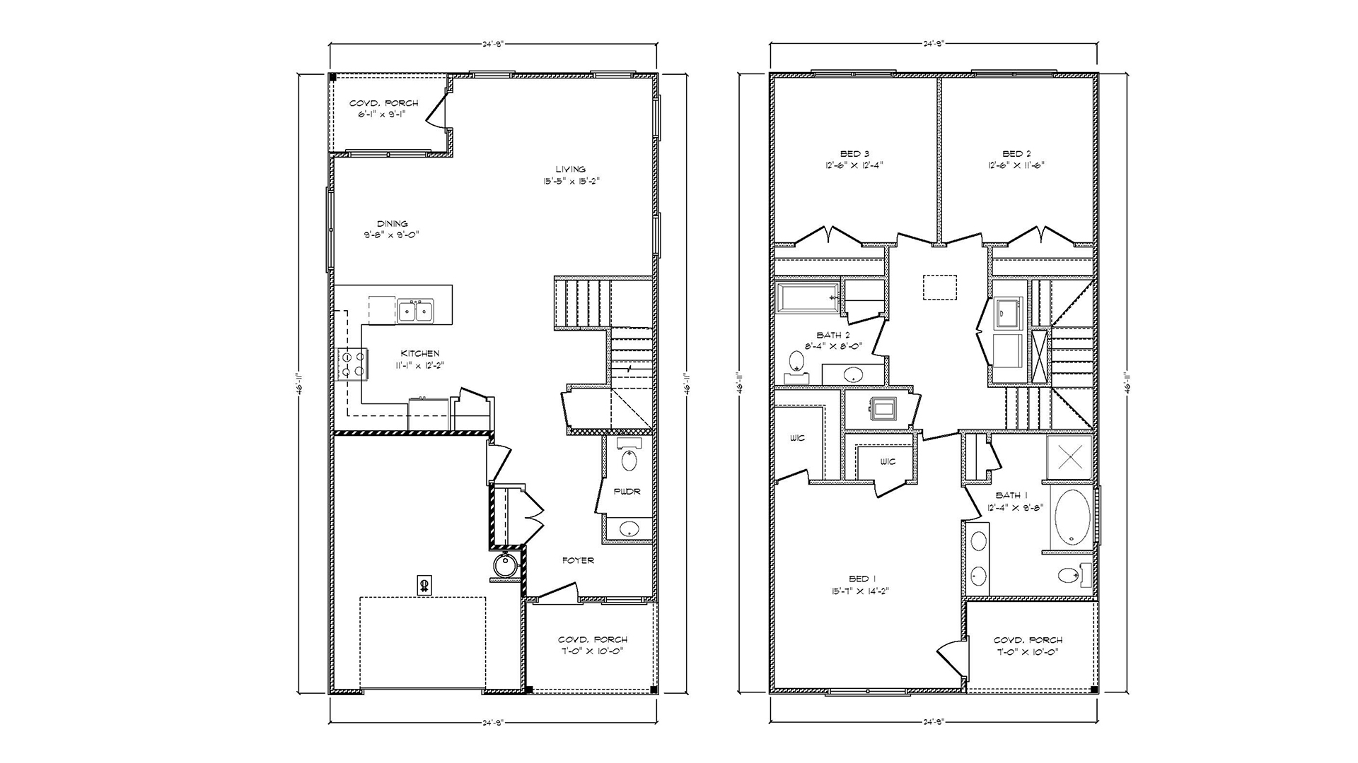
Welcome to the Monroe, a new home floor plan located in Crest Bay Cottages in Destin, Florida. This floor plan features two stories with three bedrooms and two and a half bathrooms. The exterior of this home features a covered front porch on the main level and a covered balcony on the second level just off the primary bedroom. Entering the foyer, you will find an open entry hall that leads to the grand living space. The kitchen is open to the dining and living areas features a peninsula bar with space for seating. Traditional 9' ceilings grace the living area which opens to the covered back porch The main level serves as the heart of the home with plenty of space and a powder room located just off the entry.
The stairs leading to the second level are accessible from the living area and lead to all three bedrooms. As you reach the second level you are met with a landing with laundry area and shared bathroom. The Primary bedroom is located overlooking the front lawn and has a private ensuite bathroom. Two large closets are located in the primary bedroom and offer plenty of space for your wardrobe needs. The primary bathroom has the feel of a private oasis with a large soak tub and a separate shower. The dual sink vanity offers lower cabinetry for storage. Enjoy a quiet evening on your covered balcony located off the primary bedroom. For more information on this floorplan, contact a D.R. Horton Sales Representative
Read more about this plan
{"InvalidUserInputMessage":"Please check your data entered again","ServerErrorMessage":"We couldn't share this page via email, try again later","SuccessResultCode":0,"InvalidUserInputResultCode":1,"ServerErrorResultCode":2,"HostName":"http://www.drhorton.com","DefaultPageUrl":"https://www.drhorton.com/florida/panama-city/destin/crest-bay-cottages/floor-plans/monr","DefaultModalHeader":"Share this property."}
Facebook LinkedIn Email