About this floor plan
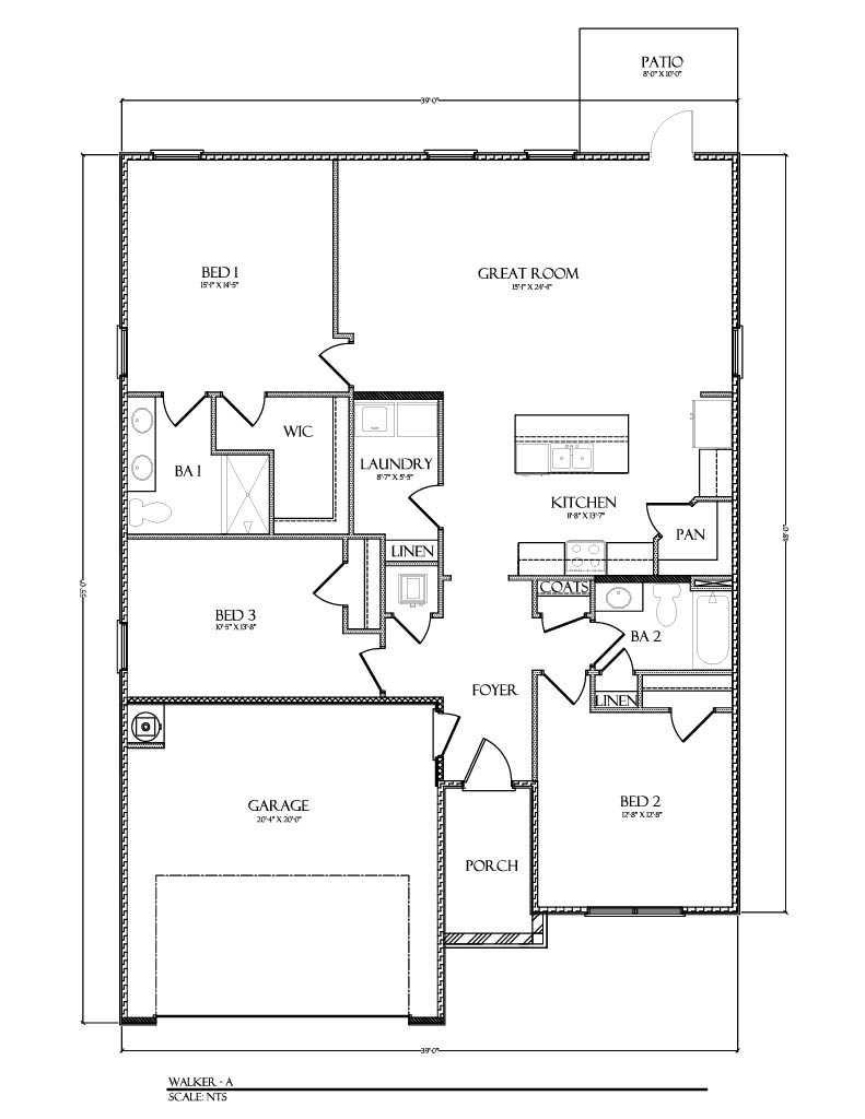
Welcome to the Walker, a new home floor plan located at Hodges Bayou Plantation in Southport, Florida. The Walker is thoughtfully designed 3-bedroom, 2-bathroom, one-story home with 1,631 square feet of modern living. On the outside of your home, you will see sturdy brick on the front of the home and durable vinyl siding on the sides and rear of the home, a spacious two-car garage with an opener and a fully sodded yard to the property lines. This home comes equipped with dimensional shingles with a limited lifetime warranty, electronic deadbolts on all exterior doors, weatherproof outlets, and hose bibs. Sidewalks line the neighborhood streets for you to enjoy the beautiful Florida weather at Hodges Bayou Plantation.
Inside you will see 9' ceilings throughout, engineered vinyl plank flooring throughout the home and carpet in the bedrooms. The front bedrooms, bathroom, and garage are close to the front door and welcome you into an open living room and kitchen, perfect for having guests over. Quartz countertops, white cabinetry with soft-close are in the kitchen and bathrooms, and the kitchen island makes hosting or serving dinner at the bar a breeze. Complete with a pantry, and stainless-steel appliances including smooth top range, microwave, and dishwasher means your kitchen is fully equipped. The living room has plenty of windows for natural lighting and leads right to the back door. Each bedroom comes with soft carpet floors and spacious closets. The Primary Bedroom features a bathroom with a detached shower and double vanity with quartz countertops. The walk-in closet is adjacent to the bathroom, meaning more space in your bedroom. As with all the homes in Hodges Bayou Plantation, your home is outfitted with the latest Smart Home technology, allowing you to manage your home right from your phone, making your comfort easy and exceptional. The Walker is a lovely addition to the new homes at Hodges Bayou Plantation. Contact us today for more information or stop by our model home to tour this community!
Read more about this plan
Facebook LinkedIn Email