Now Selling

Homes for sale at
Salt Creek at Mexico Beach

From $284,900

|

Tradition SeriesSM

396 Salt Creek Lane, Mexico Beach, FL 32456

3 - 4 Bed| 2.5 Bath | 1 - 2 Garage

2 Story | From 1,460 Sq. Ft.

Community information

Mon - Sat 10:00 AM - 6:00 PM
Sun 1:00 PM - 6:00 PM

About our community

Welcome to the Salt Creek Townhomes located in the highly visited Mexico Beach, Florida. Salt Creek is located right on the edge of Bay County, you will find beautiful beaches of the Gulf of Mexico within walking distance, and local restaurants and shopping close by. These homes offer easy access to Tyndall Air Force Base (just a 15-minute drive), Panama City Beach (30 minutes away), and downtown Port St. Joe (only 20 minutes away).

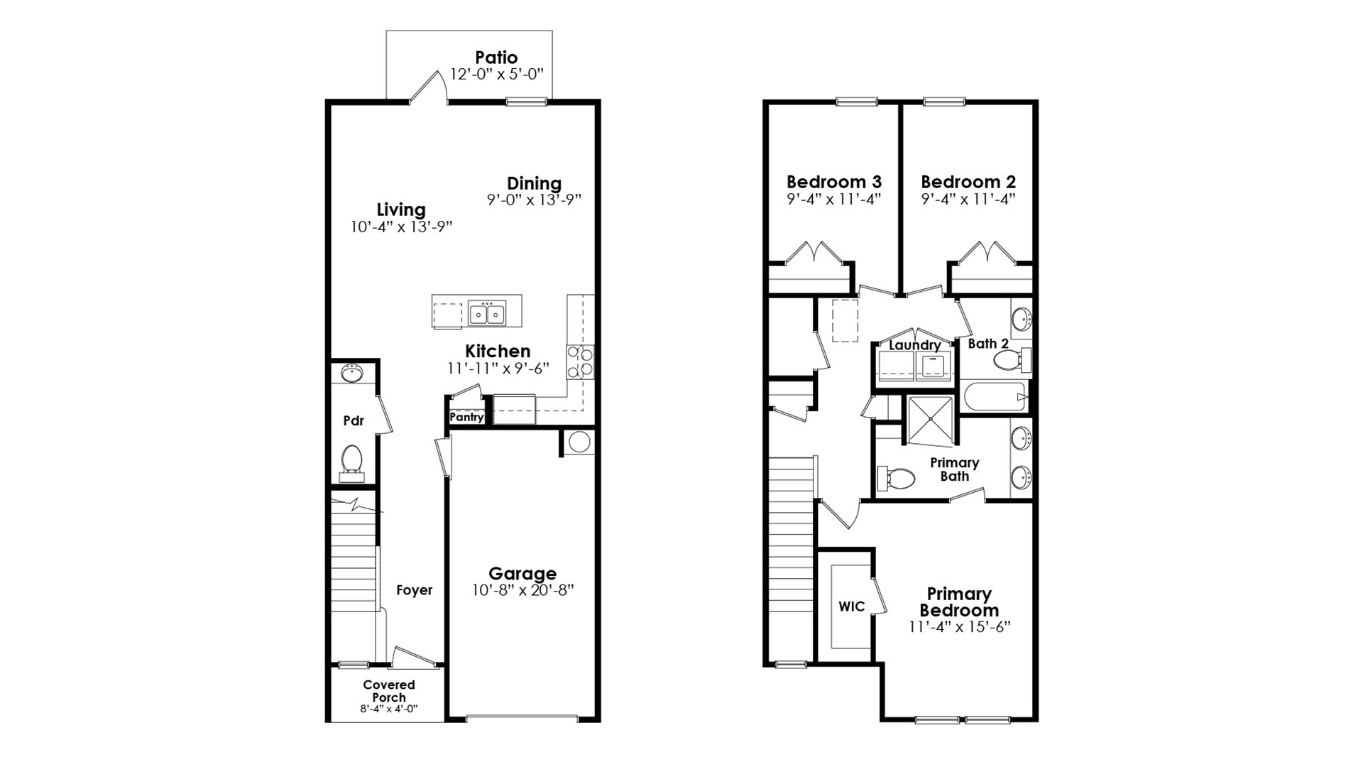
At Salt Creek, we have the Sabal Townhome which features 2 floor plans, an interior and exterior unit. These thoughtfully designed townhomes offer either 4 bedrooms and 2.5 bathrooms or 3 bedrooms and 2.5 bathrooms. The single townhome has a 1-car garage, and the exterior unit has a 2-car garage.

On the outside of these units, you will see quality Color-Plus Hardie Board exteriors, complemented by prairie-style doors and 30-year dimensional shingles. Convenience meets security with steel garage doors equipped with openers, weatherproof outlets, hose bibs, and Kwikset deadbolts on all exterior doors.

Inside the home, there is beautiful EVP flooring on the first floor of the home and in all bathrooms and soft carpet on the upstairs level and bedrooms. Walking through the front door, you will be led to the open living room and kitchen. In the kitchen and bathroom, you will find gorgeous quartz countertops, white cabinets with brushed nickel hardware, and stainless-steel appliances in the kitchen. Stay cool at the beach with energy-efficient cooling and heating systems, Low-E insulated windows with screens, and water-saving elongated commodes.

For added security, every home comes equipped with a Safe Haven Surveillance system, Skybell doorbell, Honeywell thermostat, and Smart Switches. Rest assured with a one-year builder’s warranty from DR Horton and a ten-year structural warranty through RWC.

Escape the hustle and bustle with a peaceful community atmosphere free from heavy traffic and short-term rentals. Welcome to Salt Creek – where coastal living meets modern comfort.

More homes. More savings. Deals end May 3.
Act now

Community amenities

  • HOA

Schools

Tyndall Academy
Public | Pre-K - 8th 13.8 mi.

Tyndall Academy
Public | Pre-K - 8th 13.8 mi.

Rutherford High School
Public | 6-12 21.2 mi.

View this community’s lot map

Community information

Mon - Sat 10:00 AM - 6:00 PM
Sun 1:00 PM - 6:00 PM

Come shop our homes and get expert advice in person.

Panama City, FL

New Homes in Panama City by D.R. Horton

D.R. Horton’s new homes in Panama City, Florida feature thoughtfully laid-out floor plans and come with a robust home warranty for your peace of mind. We build in the most desired communities throughout Panama City and will work with you to find a place that you will love.

Making your home in Panama City

Located in the panhandle of northwest Florida, Panama City has a great climate year round. Panama City is nearly surrounded by St. Andrews Bay which makes it a great place for water sports, fishing and more. It is also home to some of the most beautiful beaches in the country. If you prefer to enjoy the wonderful climate further inland, there are a number of great golf courses in the area. 

Panama City strives to maintain a small-town feel for its residents, despite its growth and the many big-city conveniences. Whether you want to spend a day on the waterfront or try out a new restaurant, you can find something unique in this town. 

D.R. Horton homes

Our homes in Panama City rare available in a variety of thoughtful layouts that are full of beautiful features with many options to choose from.

We have successfully delivered homes across the country and remain committed to providing the high level of quality that homeowners like you have come to expect. Take a look at the floor plans in our Panama City communities, including the quick move-in homes, to find one that is right for you.

{"InvalidUserInputMessage":"Please check your data entered again","ServerErrorMessage":"We couldn't share this page via email, try again later","SuccessResultCode":0,"InvalidUserInputResultCode":1,"ServerErrorResultCode":2,"HostName":"http://www.drhorton.com","DefaultPageUrl":"https://www.drhorton.com/florida/panama-city/port-st-joe/salt-creek-at-mexico-beach","DefaultModalHeader":"Share this property."}