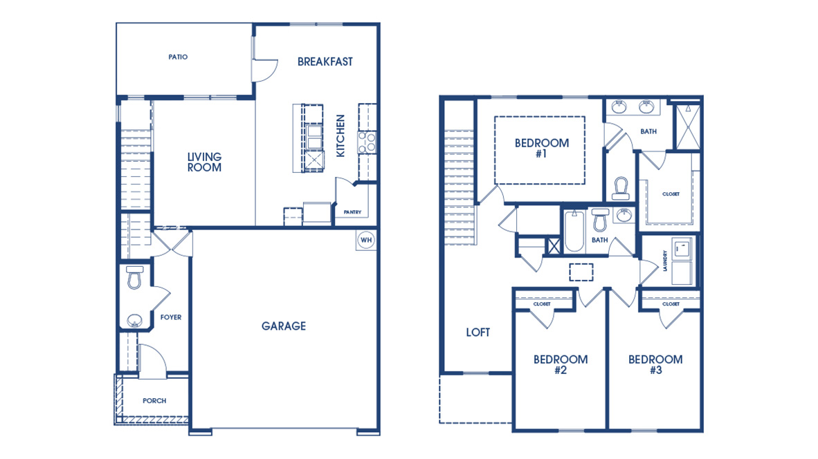
Cabral Floor Plan
Call for Information
| Express Series®
3 Bed |
2.5 Bath |
2 Garage |
2 Story
1,634 Sq. Ft.
About this floor plan
The Cabral is a versatile new home floor plan designed to meet the needs of today’s homebuyers. Offering 3 bedrooms and 2.5 bathrooms, this layout emphasizes open living spaces, natural light, and flexible design options. The welcoming entry leads into a spacious open-concept living area, creating a warm and inviting atmosphere ideal for both everyday living and entertaining. The kitchen is centrally located and features ample counter space, modern cabinetry, a functional layout, and optional upgrades, allowing homeowners to personalize their space. The kitchen flows seamlessly into the dining and living areas, enhancing connectivity and maximizing usability. Large windows throughout the home bring in natural light and highlight the thoughtful design of this new construction floor plan.
The primary suite is designed for privacy and comfort, featuring a generous bedroom, well-appointed bathroom, and spacious closet. Secondary bedrooms provide flexibility for family members, guests, or remote work needs. Optional spaces such as flex rooms, lofts, or bonus rooms allow buyers to adapt the home to fit their lifestyle. The Cabral offers the opportunity to personalize finishes and features, making it an ideal choice for buyers searching for a modern floor plan in a new construction community. Explore the Cabral and discover why it remains a popular choice among buyers seeking new homes for sale in Athens, GA.
Read more about this plan
{"InvalidUserInputMessage":"Please check your data entered again","ServerErrorMessage":"We couldn't share this page via email, try again later","SuccessResultCode":0,"InvalidUserInputResultCode":1,"ServerErrorResultCode":2,"HostName":"http://www.drhorton.com","DefaultPageUrl":"https://www.drhorton.com/georgia/atlanta/athens/villas-of-shoal-creek/floor-plans/cabm","DefaultModalHeader":"Share this property."}
Facebook LinkedIn Email