Clifton Floor Plan
Call for Information
| Freedom SeriesSM
2 Bed |
2 Bath |
2 Garage |
1 Story
1,865 Sq. Ft.
About this floor plan
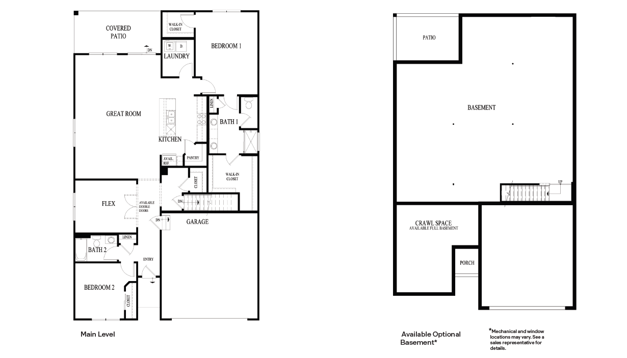
Introducing the popular Clifton floor plan at Lago Vista in Lockport, IL, where every square foot is designed for comfort and style. This stunning ranch-style home offers 1,863 sq. ft. of open-concept living space. This 2-bedroom, 2-bathroom, 2-car garage home features a secondary bedroom and full bath at the front for privacy. Down the hall, a flex room is perfect as a home office or den. The space opens to a spacious great room and kitchen, complete with stainless-steel appliances, cabinets with crown molding, walk-in pantry, and center island for meal prep, casual dining, or entertaining. The primary suite is a private retreat with two walk-in closets and an en suite bath featuring dual vanities, a seated shower, and water closet. The laundry room is conveniently located next to the primary suite. The also Clifton plan includes a basement which provides plenty of additional storage space.
Step outside to a covered patio, your own outdoor oasis for relaxing or entertaining. Find your home at Lago Vista today! *Photos are for representational purposes only, finishes will vary per home.
Read more about this plan
{"InvalidUserInputMessage":"Please check your data entered again","ServerErrorMessage":"We couldn't share this page via email, try again later","SuccessResultCode":0,"InvalidUserInputResultCode":1,"ServerErrorResultCode":2,"HostName":"http://www.drhorton.com","DefaultPageUrl":"https://www.drhorton.com/illinois/chicago/lockport/lago-vista/floor-plans/f402","DefaultModalHeader":"Share this property."}
Facebook LinkedIn Email