Anderson Floor Plan
Call for Information
| Freedom SeriesSM
3 Bed |
2 Bath |
2 Garage |
1 Story
1,505 Sq. Ft.
About this floor plan
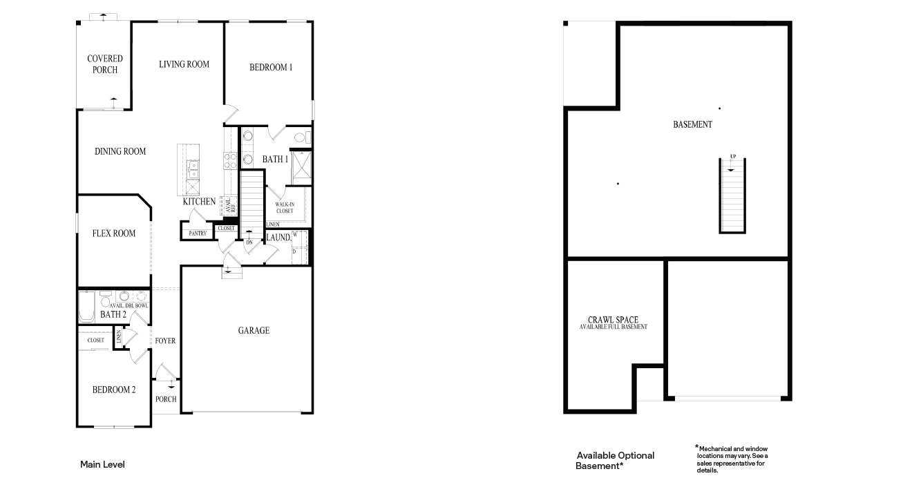
Introducing the Anderson, a ranch single family floor plan featured in our Lago Vista community in Lockport, Illinois. With stone and brick accents, covered back porches, and 2-car garages, the Anderson’s exteriors make an impact. Enter this 3 bedroom, 2 bathroom home, and you will find 1,505 square feet of single level living space. Walking through the foyer, the secondary bedrooms and full bath are located up front for privacy. Down the hall, the space opens up to your dining room, kitchen, and living area. This is perfect for everyday living and entertaining. The kitchen includes designer cabinets with crown molding, quartz countertops, stainless steel appliances, a large pantry, and an island with an eating bar. The kitchen island overlooks the dining room, so you'll never be too far from the action.
The spacious primary bedroom has its own attached bathroom that features a walk-in closet and all the space you need to get ready in the morning. Sharing a sink isn’t a worry with the double vanity. A walk-in laundry room and 2 additional linen closets, and a basement complete the rest of the home. Find your home at Lago Vista today! *Photos are for representational purposes only, finishes will vary per home.
Read more about this plan
{"InvalidUserInputMessage":"Please check your data entered again","ServerErrorMessage":"We couldn't share this page via email, try again later","SuccessResultCode":0,"InvalidUserInputResultCode":1,"ServerErrorResultCode":2,"HostName":"http://www.drhorton.com","DefaultPageUrl":"https://www.drhorton.com/illinois/chicago/lockport/lago-vista/floor-plans/x435","DefaultModalHeader":"Share this property."}
Facebook LinkedIn Email