About this home
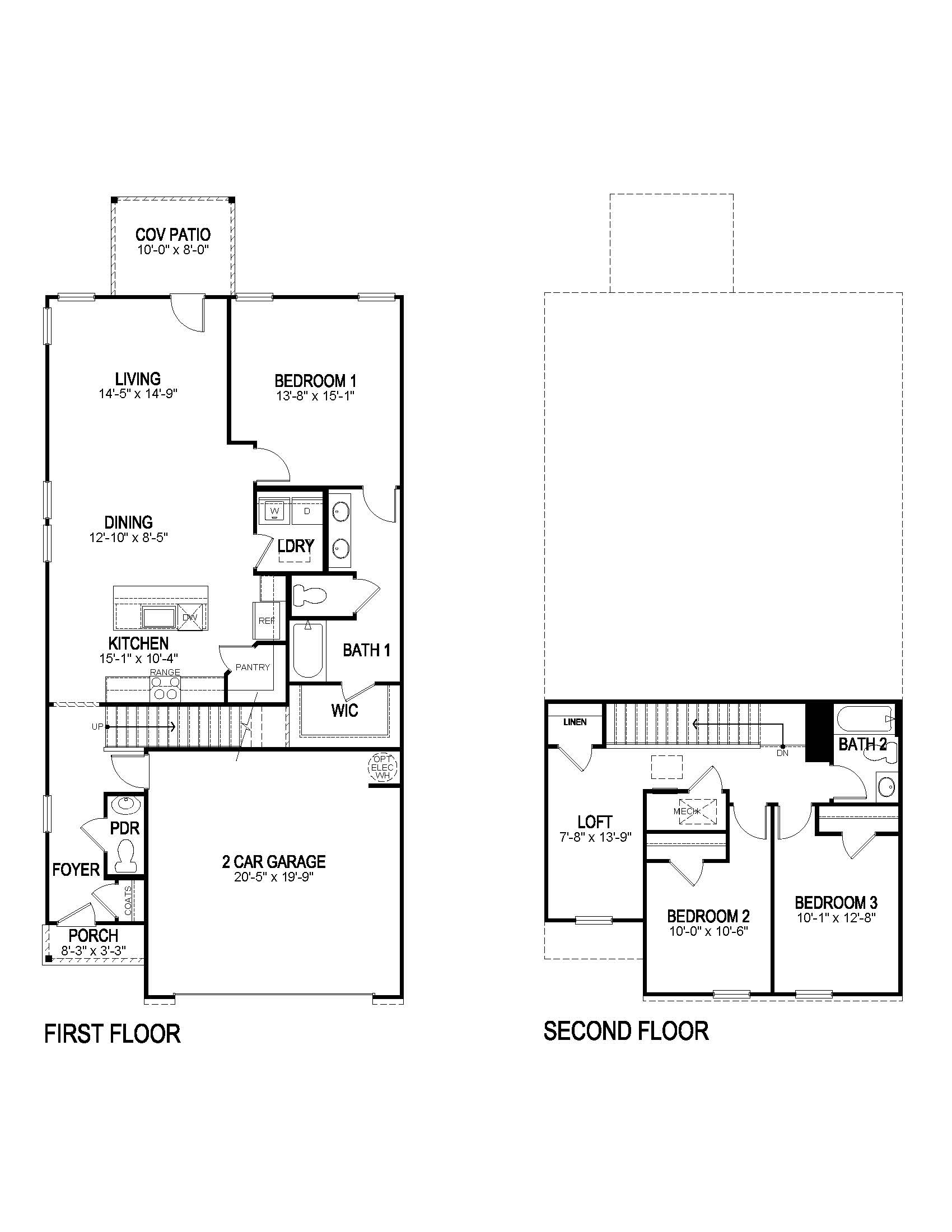
Discover 2105 Clark Ave., Zachary, La, a beautifully designed two-story new construction home offering 3 bedrooms, 2.5 bathrooms, a loft, and a 2-car garage in The Jarrett is a perfect fit for homebuyers looking for modern comfort, smart design, and flexible living space. This thoughtfully crafted layout delivers the ideal blend of style and functionality, making it one of the most popular options among buyers searching for new homes for sale in Zachary Trails, Zachary, La.
As you enter the home, a welcoming foyer leads to a convenient powder room and garage access before opening into the spacious open-concept living area. The kitchen, dining room, and living room flow together effortlessly, creating a bright and versatile main level ideal for entertaining, daily routines, and family gatherings. Large windows help fill the space with natural light, and direct access to the covered patio extends your living space outdoors.
The modern kitchen features a centrally located granite island boasting stainless-steel appliances overlooking the dining and living spaces, a walk-in pantry, and easy access to the laundry room—adding both convenience and efficiency to your everyday lifestyle. Durable flooring in all main and wet areas ensures long-lasting style and easy maintenance.
The primary bedroom suite, located on the first floor for added privacy, includes a spacious bedroom, a large walk-in closet, and an attached bathroom with dual vanities and a well-designed layout to support your morning and evening routines.
Upstairs, you'll find a versatile loft, perfect for a second living area, game room, home office, or creative space. Two additional bedrooms and a full bathroom complete the second floor, offering comfortable and customizable living options for families, guests, or hobbies.
Whether you're looking for space to grow, room to entertain, or modern features that make life easier, The Jarrett delivers exceptional value and flexibility in any community.
Explore The Jarrett today and discover why this smart, family-friendly floor plan is a top choice for buyers searching for new homes in Zachary, La, Zachary Trails.
Read more about this available home
Facebook LinkedIn Email