About this floor plan
Welcome to the Hampshire at The Preserve at Blue Run, a stunning new construction home located in the highly desirable Fox Chapel School District. This established, sought-after community offers the perfect balance of luxury living, low-maintenance convenience, and easy access to shopping, dining, and major highways, allowing you to enjoy a peaceful retreat without sacrificing location.
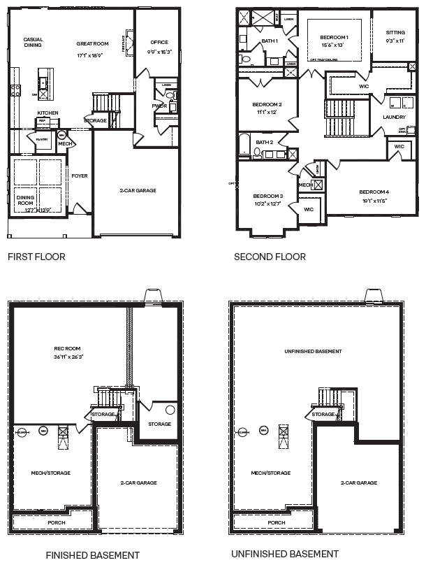
Offering 3,300+ square feet of thoughtfully designed living space, this impressive home offers up to 6 bedrooms, up to 5 bathrooms, a finished lower level, and a 3 car garage, providing exceptional flexibility for a variety of lifestyles. An optional finished basement adds even more room to spread out, entertain, or comfortably host guests. The open concept layout is ideal for everyday living and entertaining, highlighted by a gourmet kitchen with an oversized island, stylish backsplash, soft close cabinetry, quartz countertops, stainless steel appliances, and luxury vinyl plank flooring. Ample storage and generous closets are thoughtfully integrated throughout the home, ensuring space for everything you need. With professionally selected finishes already included, you can skip the stress of upgrades and move right in—the Hampshire is popular for a reason. Upon entry, you’re welcomed by a spacious formal dining room, perfect for hosting special gatherings. The foyer opens into a bright, open living area where the kitchen overlooks the casual dining space and living room. Upstairs, enjoy the convenience of second-floor laundry and bedrooms, including the luxurious owner’s suite featuring a cozy sitting area, a large walk-in closet, and a spa-inspired bathroom designed for relaxation. Don’t miss your opportunity to own this exceptional new home in The Preserve at Blue Run. Schedule your private tour today and experience the quality, comfort, and convenience of the Hampshire firsthand.
Read more about this plan
Facebook LinkedIn Email