ASTORIA Plan
Tradition Series
SM |
Call for Information
3 Bed |
2 Bath |
2 Garage |
1.5 Story
1,700 Sq. Ft.
About this floorplan
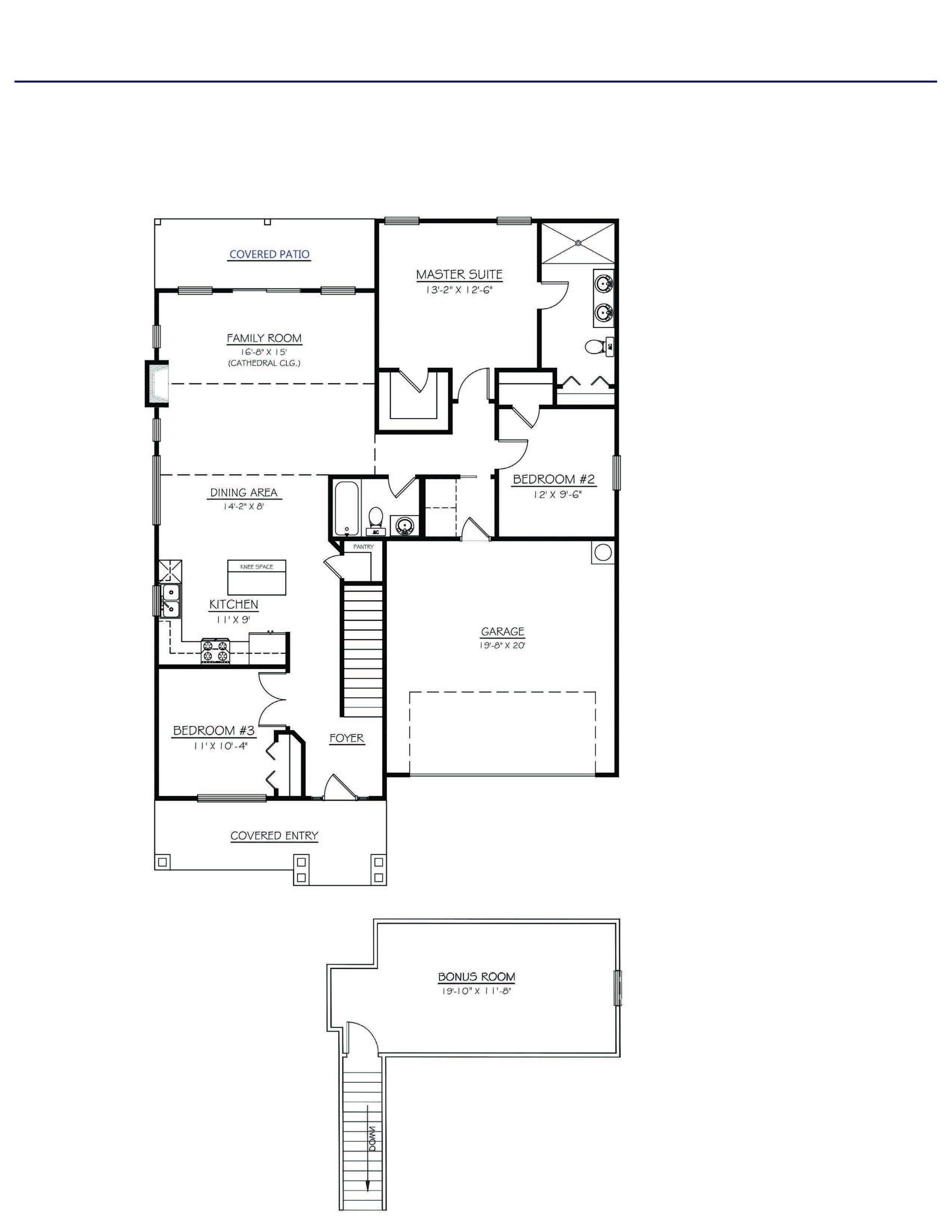
The Astoria is one of our thoughtfully designed homes featured at Briargate in Fountain Inn, SC. This beautiful home combines comfort and functionality with an open-concept layout perfect for modern living. It includes three bedrooms, two full bathrooms, a two-car garage, and a spacious bonus room.
As you enter through the covered entry, you’ll be greeted by a welcoming foyer that leads into the heart of the home. The kitchen features modern appliances, a pantry, and a breakfast bar, and it opens to the dining area and family room, creating the perfect space for entertaining and everyday living. The family room’s cathedral ceiling enhances the open and airy feel of the space, while the covered patio provides an inviting area for relaxing or enjoying the outdoors. The primary suite offers a private retreat with a spacious bathroom featuring dual vanities and a walk-in closet. Two additional bedrooms share access to a secondary bathroom, providing comfort and convenience for family or guests. A large bonus room offers flexible space that can serve as a media room, home office, or playroom. With its thoughtful design and inviting layout, the Astoria is the perfect place to call home.
Read more about this plan
Request information
{"InvalidUserInputMessage":"Please check your data entered again","ServerErrorMessage":"We couldn't share this page via email, try again later","SuccessResultCode":0,"InvalidUserInputResultCode":1,"ServerErrorResultCode":2,"HostName":"http://www.drhorton.com","DefaultPageUrl":"https://www.drhorton.com/south-carolina/greenville/fountain-inn/briargate/floor-plans/sast","DefaultModalHeader":"Share this property."}
Facebook LinkedIn Email