GIBSON Plan
Tradition Series
SM |
Call for Information
3 Bed |
2 Bath |
2 Garage |
1 Story
1,224 Sq. Ft.
About this floorplan
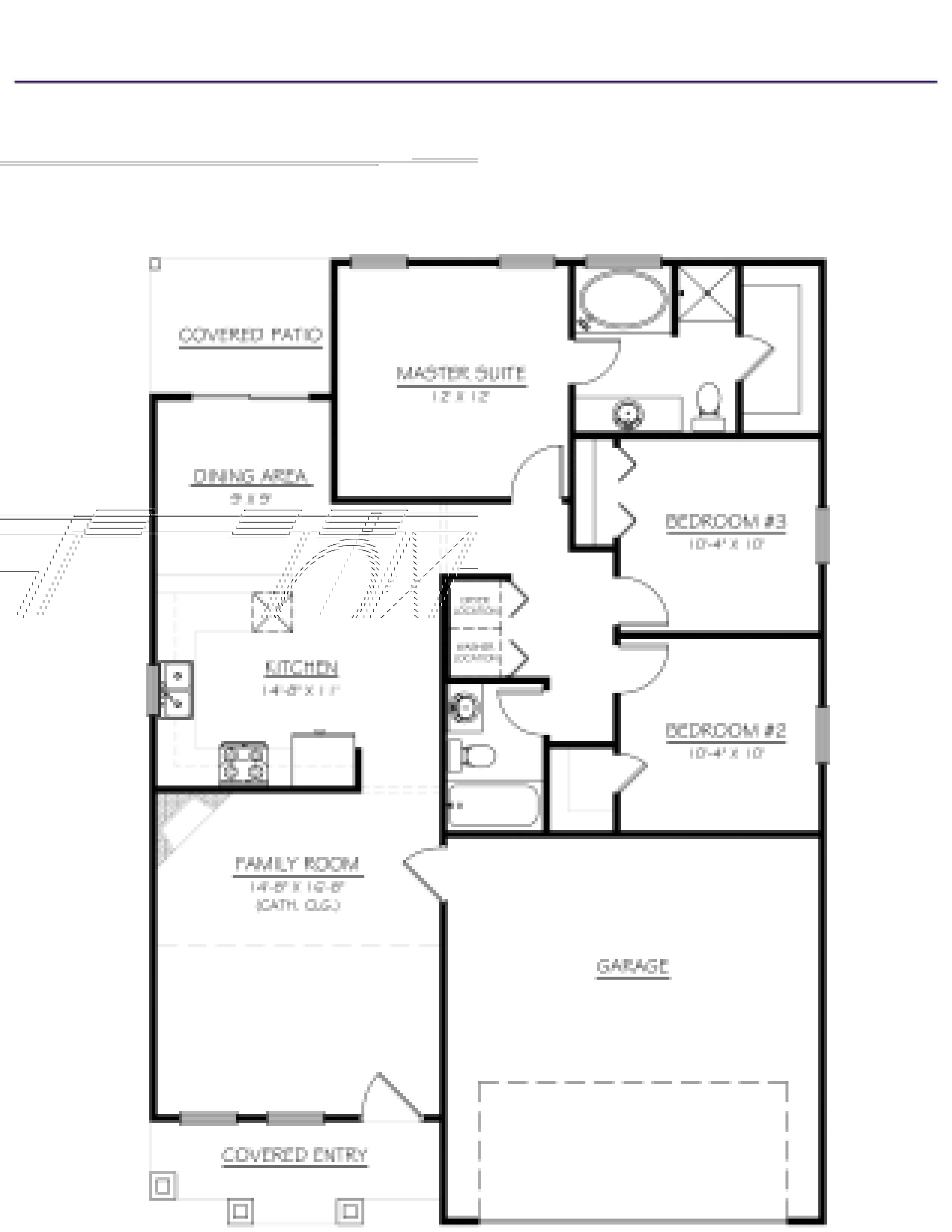
The Gibson is one of our thoughtfully designed homes featured at Briargate in Fountain Inn, South Carolina. This charming one-story home offers a comfortable and functional layout with three bedrooms, two full bathrooms, and a two-car garage. The open-concept design creates an inviting space perfect for modern living.
Upon entering through the covered entry, you’ll find a spacious family room with a cathedral ceiling that flows seamlessly into the kitchen and dining area. The kitchen features modern appliances, a pantry, and ample counter space, making it ideal for cooking and entertaining. The dining area opens to a covered patio, providing the perfect setting for outdoor gatherings or relaxation. The primary suite offers a private retreat with a spacious bathroom that includes dual vanities, a soaking tub, a separate shower, and a walk-in closet. Two additional bedrooms and a full bathroom are located toward the front of the home, offering comfort and convenience for family or guests. With its efficient layout, open living spaces, and thoughtful design, The Gibson is the perfect place to call home.
Read more about this plan
Request information
{"InvalidUserInputMessage":"Please check your data entered again","ServerErrorMessage":"We couldn't share this page via email, try again later","SuccessResultCode":0,"InvalidUserInputResultCode":1,"ServerErrorResultCode":2,"HostName":"http://www.drhorton.com","DefaultPageUrl":"https://www.drhorton.com/south-carolina/greenville/fountain-inn/briargate/floor-plans/sgib","DefaultModalHeader":"Share this property."}
Facebook LinkedIn Email