About this home
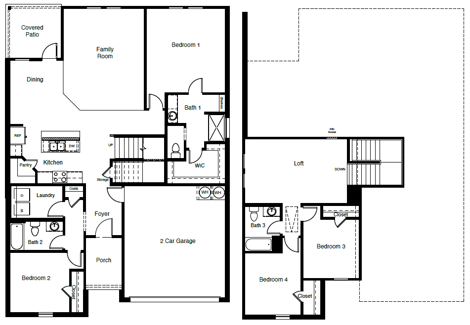
10613 Dripping Creek Lane, Fort Worth, Texas is a new construction home built by D.R. Horton America's Builder in the Sunnycreek community. Complete and Move-In Ready! The Midland is a two-story floor plan offering approx. 2,208 sq. ft. of living space, 4 bedrooms, 3 bathrooms and a loft. As you enter the home through the foyer, you'll pass one secondary bedroom and bathroom and the laundry room, all tucked away in a spacious hallway. Next, you'll pass the stairwell and enter into the open concept living space. The kitchen is open to the dining area and living room, perfect for entertaining. The kitchen features granite countertops, stainless steel appliances with gas cooking range, a walk-in pantry, and a large kitchen island. The main bedroom suite is privately located at the back of the home, just off the living room, and features a large walk-in closet, and a spacious walk-in shower with ceramic tile surround. Upstairs you will find an open loft space, two additional secondary bedrooms and the third full bathroom. This home also includes a covered patio, professionally landscaped and irrigated yard complete with sod. Additional features include natural gas, ceramic tile flooring in the entry, halls and wet areas, plush carpet in the living room and all bedrooms. The Midland includes our HOME IS CONNECTED base package. Using one central hub that talks to all the devices in your home, you can control the lights, thermostat and locks, all from your cellular device.
Photos shown here may not depict the specified home and features and are included for illustration purposes only. Elevations, exterior/ interior colors, options, available upgrades, and standard features will vary in each community and may change without notice. May include options, elevations, and upgrades (such as patio covers, front porches, stone options, and lot premiums) that require an additional charge. Landscaping and furnishings are décor items and are not included in purchase price. Call sales agent for more details.
Read more about this available home
Facebook LinkedIn Email