About this floorplan
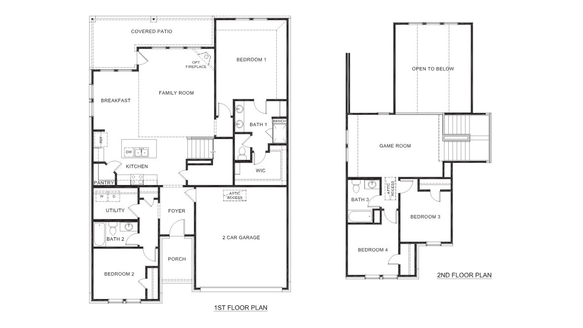
Find yourself at home in the Copaiba in our new phase of Augusta Square, located in Fort Worth Texas. When you step inside the Copaiba you're greeted by an open and inviting foyer, where natural light streams through the windows, setting a welcoming tone. To the left, a cozy secondary bedroom sits tucked away—perfect for guests or a quiet home office. Nearby, a full bathroom offers both convenience and privacy.
Continuing into the home, the heart of the living space unfolds. The kitchen immediately catches the eye with its modern layout, complete with sleek countertops, a spacious island, and a walk-in pantry ready to store all your essentials. A large breakfast / dining area perfect for hosting brunch, allowing the aroma of freshly brewed coffee to flow seamlessly into the family room. The family room feels expansive and airy, perfect for cozy movie nights or entertaining friends. Just beyond, the covered patio is a peaceful retreat to unwind as the sun sets over the neighborhood. The primary suite, nestled on the main floor, offers a quiet sanctuary. With its walk-in closet and a spa-like ensuite bathroom featuring a double vanity and walk-in shower, perfect to unwinding after a long day. Heading upstairs, discover an open game room that feels full of possibilities—a space for the kids to play, a home gym, or even a second living area. Two additional bedrooms and a full bathroom complete the second floor, offering plenty of room for family or guests. Every corner of this home is thoughtfully designed, from the ample storage space to the functional flow between rooms. The two-car garage, utility room, and extra storage areas make daily living a breeze. See the Copaiba for yourself at Augusta Square today!
Read more about this plan
Request information
Facebook LinkedIn Email