About this floor plan
Excited to talk new homes?
Text with us
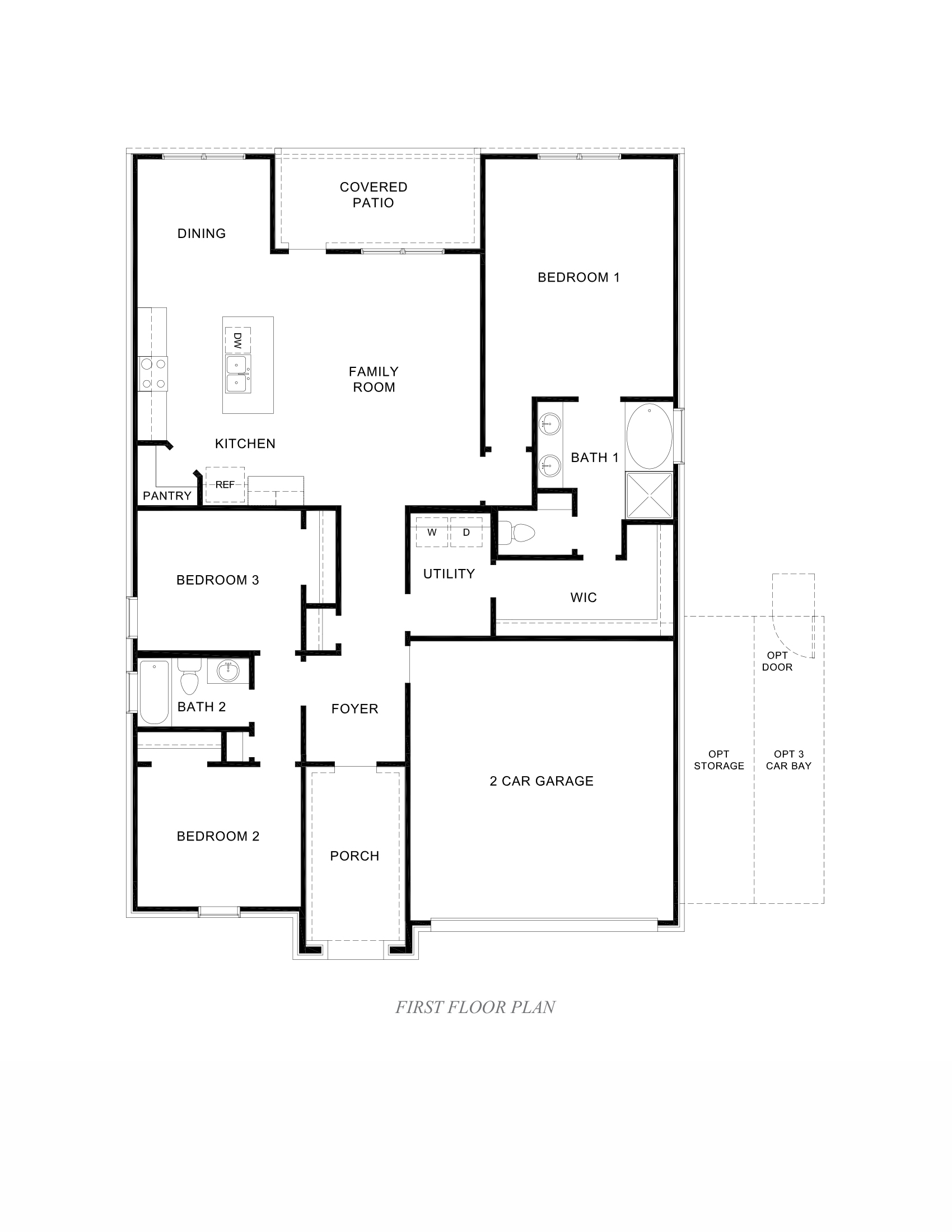
Welcome to the Opal/1620 floor plan, located in Mill Creek Estates. This single-story house has three bedrooms, two bathrooms, and a two-car garage. It spans 1,612 square feet and will be a lovely home for you and your family! Entering this home, you will notice two secondary bedrooms on one side of the foyer, each with access to a secondary bathroom. The first secondary bedroom features two bright windows, carpet flooring, and a tall closet, while the second secondary bedroom has carpet flooring, one bright window, and a tall closet. On the other side of the foyer is the utility room, which has vinyl flooring, space for a washer and dryer, and access to the primary bedroom.
Continuing through the foyer, you will reach the family room, dining room, and L-shaped kitchen. This is an open concept living and dining space, making this house perfect for hosting family dinners or parties with friends. The vinyl flooring and bright windows in this area of the home give the space a comfortable and inviting air. The kitchen is equipped with stainless-steel appliances, extra counter space, a kitchen island, and a tall pantry. The primary bedroom can be accessed through the family room. This room has carpet flooring and two large windows that allow natural light to illuminate the room. The primary bedroom is the perfect section in the house for relaxation and rejuvenation after a stressful work week. The bedroom leads into the primary bathroom, which has vinyl floors, a tile tub, a standing shower with a glass door, a frosted window, a double sink, and a separate toilet room. The primary bathroom leads to the walk-in closet. The walk-in closet has carpet flooring, space for storage, and access to the utility room. Exiting the home through the back patio, which is equipped with overhead lights and a place to relax, you can enjoy the great outdoors from the comfort of your luxurious backyard. You will love this home and the tranquility it provides! Stop by for a tour today!
Read more about this plan
Facebook LinkedIn Email