About this floor plan
Excited to talk new homes?
Text with us
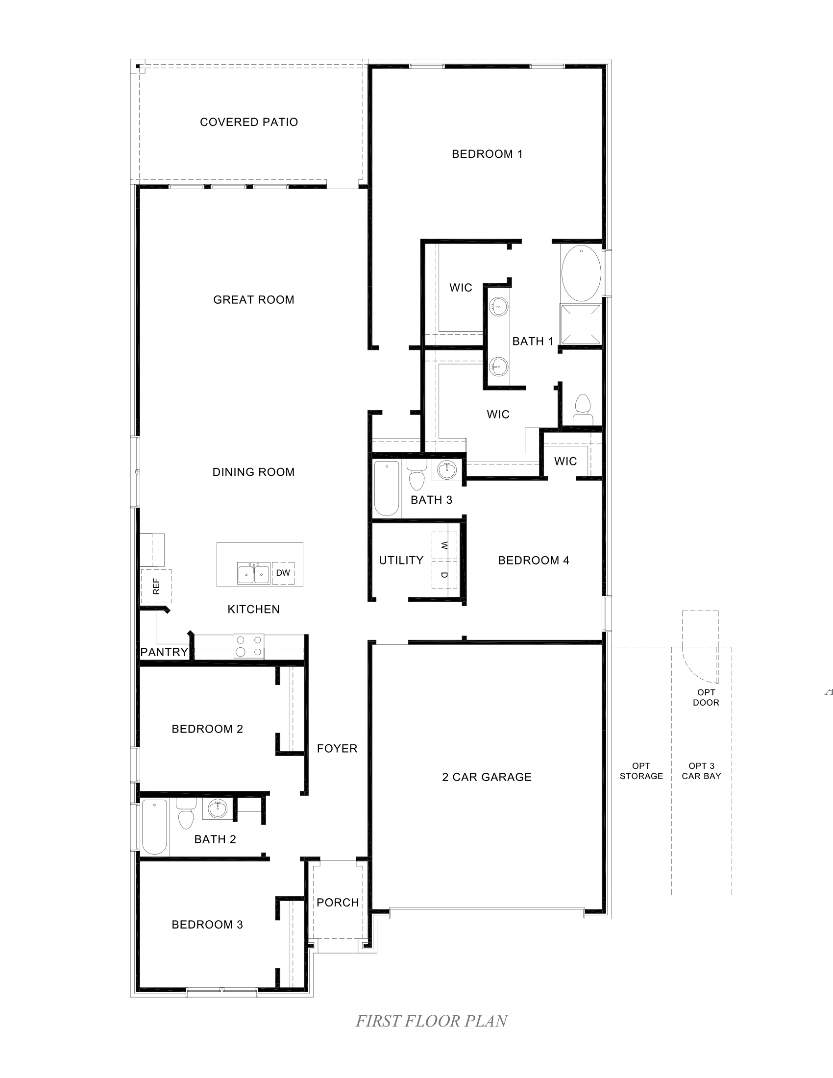
We would love to introduce you to our Emerald/2060 floor plan, located in Mill Creek Estates. This single-story house features four bedrooms, three bathrooms, and a two-car garage. It spans 2,255 square feet and will be a lovely home for you and your family! As you enter this home, you will notice two secondary bedrooms and a secondary bathroom. Each bedroom features carpet floors, a bright window, and a tall closet. The secondary bathroom is complete with vinyl floors, a window, and a tub/shower combo. When you reach the end of the foyer, you turn and find the small hallway leading to the utility room and third secondary bedroom. The utility room has vinyl floors and space for a washer and dryer while the third secondary bedroom features carpet flooring, a bright window illuminating the room, and a walk-in closet. This bedroom alone has access to a secondary bathroom, which is complete with vinyl flooring and a tile/shower combo.
Returning to the end of the foyer, you arrive in the dining room, family (or “great”) room, and L-shaped kitchen. This is an open concept living and dining space, making this house perfect for hosting celebrations or weekend bashes. This area of the house has vinyl flooring and large windows, making the house glow with natural light. The kitchen is equipped with stainless-steel appliances, a large kitchen island, and a tall pantry. The primary bedroom can be accessed via the family room. The bedroom features carpet flooring and two large windows. The primary bedroom opens to the primary bathroom, which is finished with vinyl flooring, a tile tub, a standing shower, a double sink, and a separate toilet room. Two walk-in closets are located on each side of the primary bathroom, each having carpet flooring and providing more than enough room for storage. Exiting the home through the back patio, which is equipped with overhead lights and a place to relax, you can enjoy the great outdoors from the comfort of your spacious backyard! This yard could have a garden, a playset for the kids, or even a pool. You will love this home and the space it provides! Call for a tour today!
Read more about this plan
Facebook LinkedIn Email