About this floorplan
Excited to talk new homes?
Text with us
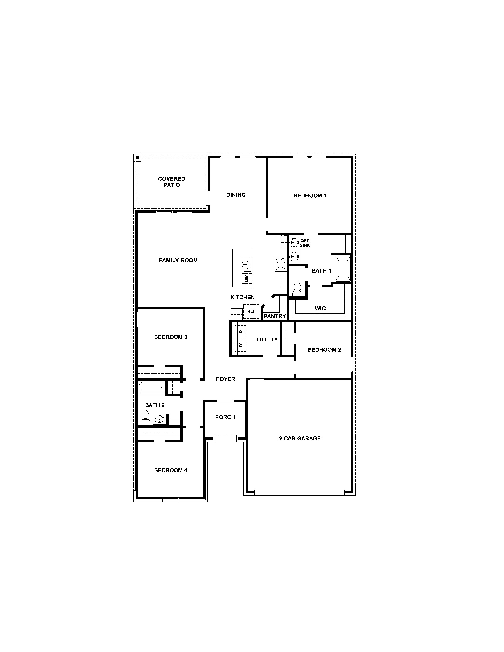
We would love to welcome you to our Huntsville/X40H floor plan, located in our Mill Creek community! This is a single-story house that includes four bedrooms, two bathrooms, and a two-car garage. This house spans 1,748 square feet and will be a lovely abode for you and your family!
Upon entering the home, you will notice on one side of the foyer two secondary bedrooms that have access to a secondary bathroom. Each of the secondary bedrooms have carpet flooring, a tall closet, and a bright window that illuminates the bedrooms. The secondary bathroom lies in between the two secondary bedrooms and is finished with vinyl floors, a tub/shower combo, and a linen nook. A linen closet sits adjacent to the entryway of the secondary bathroom. On the opposite side of the foyer, you will find a utility room and the third secondary bedroom. The utility room has enough space for a washer and dryer while the third secondary bedroom is complete with carpet flooring, a bright window, and a tall closet. Continuing through the home, you will arrive in the L-shaped kitchen, family room, and dining room. This is an open concept living and dining space, making this beautiful home perfect for hosting family celebrations or dinners with friends and neighbors. The kitchen is equipped with stainless-steel appliances, a kitchen island, vinyl floors, and a tall pantry. The primary bedroom can be accessed through the family room. The bedroom features carpet flooring and two large windows that open to the backyard. The primary bedroom leads to the primary bathroom, which has vinyl floors, a standing shower, a linen nook, a double sink, and a separate toilet room. The primary bathroom leads to the walk-in closet, which has carpet floors and space for storage. Exiting the home through the back patio, which is equipped with overhead lights and a place to relax, you can enjoy the great outdoors through the comfort of your backyard! You will love this home and the comfort it provides! Stop by for a tour today!
Read more about this plan
Request information
Facebook LinkedIn Email