Emma Floor Plan
Call for Information
| Express Series®
3 Bed |
2.5 Bath |
2 Garage |
2 Story
1,691 Sq. Ft.
About this floor plan
Excited to talk new homes?
Text with us
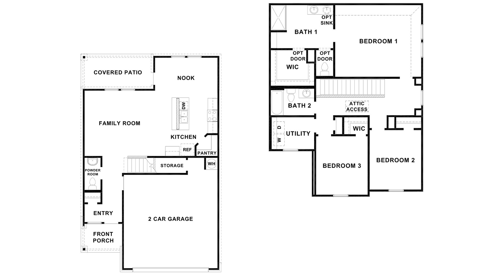
Step into the Emma floorplan at our Rancho San Gabriel community in Georgetown, Texas. This two-story floorplan offers 2 elevations that are approximately 1,691 - 1,748 square feet, 3 bedrooms, 2.5 bathrooms and a 2-car garage. Walk into the long foyer straight into the large family room overlooking the spacious kitchen and dining nook. The kitchen features granite countertops, flat panel birch cabinets, granite backsplash, stainless-steel appliances, and a kitchen island. Enjoy nature of the backyard with the covered patio that is attached to the nook. Heading upstairs you will have access to both secondary bedrooms and the primary bedroom. Each of the secondary bedrooms include carpet and walk-in closets with easy access to the laundry room and secondary bathroom. Relax in the primary bedroom that has an attached bathroom with walk-in shower and an optional double vanity sink, and a spacious walk-in closet.
Each of our D.R. Horton homes has smart home technology built in. With the smart home technology, you’ll never be far from home. Contact us today to learn more about the Emma floorplan!
Read more about this plan
{"InvalidUserInputMessage":"Please check your data entered again","ServerErrorMessage":"We couldn't share this page via email, try again later","SuccessResultCode":0,"InvalidUserInputResultCode":1,"ServerErrorResultCode":2,"HostName":"http://www.drhorton.com","DefaultPageUrl":"https://www.drhorton.com/texas/killeen-temple-waco/georgetown/rancho-san-gabriel/floor-plans/x30e","DefaultModalHeader":"Share this property."}
Facebook LinkedIn Email