Bellvue Floor Plan
Call for Information
| Express Series®
3 Bed |
2 Bath |
2 Garage |
1 Story
1,415 Sq. Ft.
About this floor plan
Excited to talk new homes?
Text with us
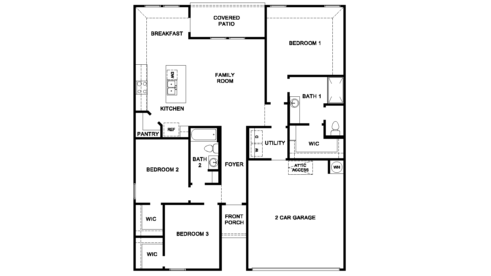
Our Bellvue is one of our one-story floorplans feature in our Rancho San Gabriel community in Georgetown, Texas. This comfortable 3 bedroom and 2-bathroom home is the perfect fit for you. Inside this home, you’ll find approximately 1,415 square feet and has an open-concept layout designed to fit your needs. This home has beautiful features that create a welcoming ambiance, and the 2-car garage ensures plenty of space for vehicles and storage. The beautiful kitchen with flat panel birch cabinetry and granite countertops, with decorative tile backsplash. It is set off from the living area by a kitchen island with a built-in sink. End your day by relaxing under the covered patio, where you can enjoy the nature from the backyard.
The primary bedroom will make you feel right at home. With an attached primary bathroom, starting your day or winding down will be a breeze. A large walk-in closet ensures plenty of storage space. The spacious secondary bedrooms are carpeted and have easy access to the laundry room and secondary bathroom. Every D.R. Horton home has smart home technology built in. Feel connected as you control and secure your home through the Qolsys smart panel, through your phone, or even with your voice. Find your home today with the Bellvue floorplan.
Read more about this plan
{"InvalidUserInputMessage":"Please check your data entered again","ServerErrorMessage":"We couldn't share this page via email, try again later","SuccessResultCode":0,"InvalidUserInputResultCode":1,"ServerErrorResultCode":2,"HostName":"http://www.drhorton.com","DefaultPageUrl":"https://www.drhorton.com/texas/killeen-temple-waco/georgetown/rancho-san-gabriel/floor-plans/x40b","DefaultModalHeader":"Share this property."}
Facebook LinkedIn Email